Spacious plot with long garden and generous reception rooms for family life.
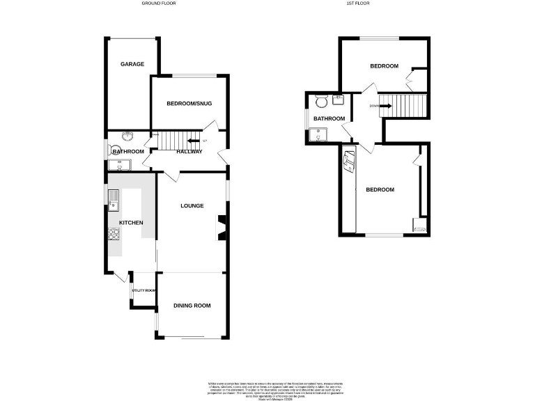
- Impressive 27ft lounge/dining room, excellent reception space
- Recently refitted kitchen with separate utility area
- Ground-floor and first-floor shower rooms for practical family living
- Integral garage with electric door and wide driveway parking
- Large rear garden approximately 70ft, private and well maintained
- Constructed 1950s–1960s; solid brick walls likely without insulation
- Double glazing installed before 2002; may need future replacement
- Slow local broadband; factor into home-working needs
A spacious three-bedroom detached home on a large plot in a well-regarded Benfleet location, ideal for families seeking flexible living. The ground floor centres on an impressive 27ft lounge/dining room, a recently refitted kitchen with separate utility, a ground-floor shower room and a versatile third bedroom/snug that works well as a home office or guest room.
Upstairs are two double bedrooms and a second shower room, giving practical family accommodation across two floors. Outside there is an integral garage with an electric door, a broad block‑paved driveway for multiple cars and a private rear garden of approximately 70ft — plenty of space for children and outdoor entertaining.
The property is offered chain-free and has been well cared for by a single long-term owner, presenting a move-in ready base with scope to personalise. Note the house is of 1950s–1960s construction with solid brick walls likely without cavity insulation, double glazing installed before 2002 and slow local broadband speeds — useful to factor into longer-term energy and connectivity plans.
Overall this mid-sized detached home suits families or downsizers wanting generous reception space, a large garden and good local schools, with straightforward opportunities for targeted improvement to modernise efficiency and decor.
4 bedroom semi-detached house for sale in Hazlemere Road, Benfleet, SS7 — £550,000 • 4 bed • 3 bath • 1926 ft²
4 bedroom detached house for sale in St. Marys Drive, South Benfleet, SS7 — £500,000 • 4 bed • 2 bath • 1461 ft²
4 bedroom detached house for sale in VIDEO PRESENTATION INSIDE - Granville Close, Benfleet, SS7 — £625,000 • 4 bed • 2 bath • 1169 ft²
3 bedroom detached house for sale in Bartley Road, Benfleet, SS7 — £450,000 • 3 bed • 2 bath • 1358 ft²
3 bedroom semi-detached house for sale in Church Road, Benfleet, SS7 — £375,000 • 3 bed • 1 bath • 915 ft²
4 bedroom detached house for sale in Thundersley Church Road, Benfleet, SS7 — £475,000 • 4 bed • 2 bath • 1421 ft²


























































































































