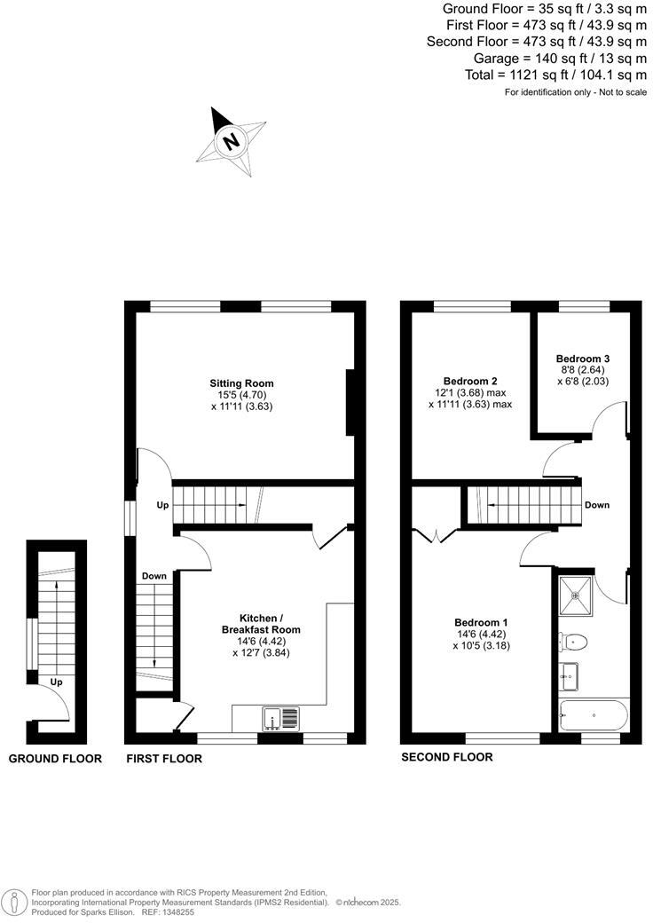
Three-bedroom duplex maisonette across two floors
This three-bedroom duplex maisonette in a quiet Ashdown Close cul-de-sac offers practical family living across two floors. Rooms are well-proportioned — a sizeable sitting room and a large kitchen/breakfast room provide flexible living and work-from-home space. The property includes a rear lawned garden and a 17'3" garage with power and light, useful for parking or secure storage.
Built in 1969 and set within a largely affluent, low-crime neighbourhood, the home sits in the catchment for highly regarded Hiltingbury Infant/Junior and Thornden secondary schools — a clear draw for families. The lease is extremely long (around 900 years) and ground rent is minimal, which reduces future ownership costs.
There are a few practical points buyers should note: external fabric (brickwork/cladding) and communal areas may need ongoing maintenance; cavity walls are assumed uninsulated; and heating details are inconsistent in the paperwork — the listing references both mains gas boiler and electric heating, so buyers should confirm the actual heating/fuel setup. Overall, this is a sensible family purchase or rental investment with good space, parking and schooling nearby, but with some condition and verification matters to check during survey and conveyancing.
2 bedroom maisonette for sale in Charnwood Crescent, Hiltingbury, Chandler's Ford, SO53 — £230,000 • 2 bed • 1 bath • 679 ft²
2 bedroom maisonette for sale in Sycamore Avenue, Chandler's Ford, Eastleigh, SO53 — £210,000 • 2 bed • 1 bath • 649 ft²
2 bedroom maisonette for sale in Hiltingbury Road, Hiltingbury, Chandler's Ford, SO53 — £225,000 • 2 bed • 1 bath • 817 ft²
3 bedroom detached house for sale in Ashdown Close, Hiltingbury, Chandler's Ford, SO53 — £475,000 • 3 bed • 2 bath • 1264 ft²
2 bedroom maisonette for sale in Broxburn Close, Hiltingbury, Chandlers Ford, Hampshire, SO53 — £285,000 • 2 bed • 1 bath • 635 ft²
2 bedroom maisonette for sale in Neilson Close, Chandler's Ford, Hampshire, SO53 1GR, SO53 — £250,000 • 2 bed • 1 bath • 454 ft²


























































































