Characterful rural home with paddock and outbuildings for smallholding potential.
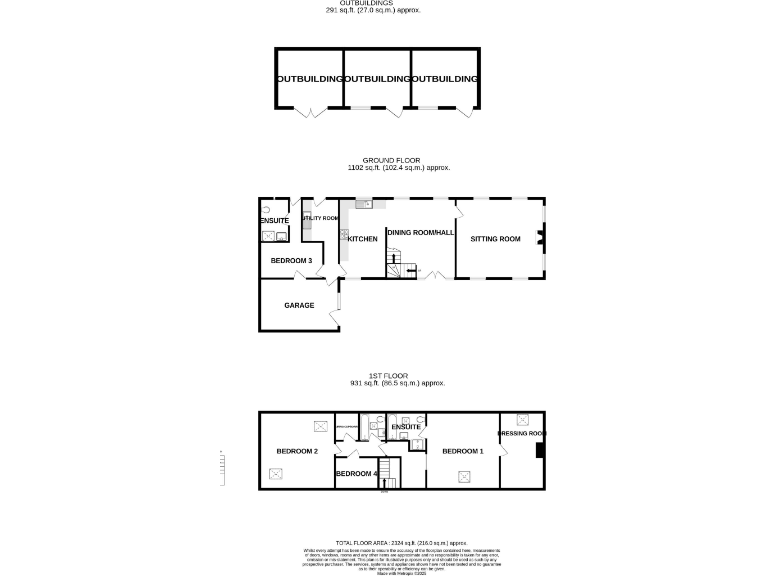
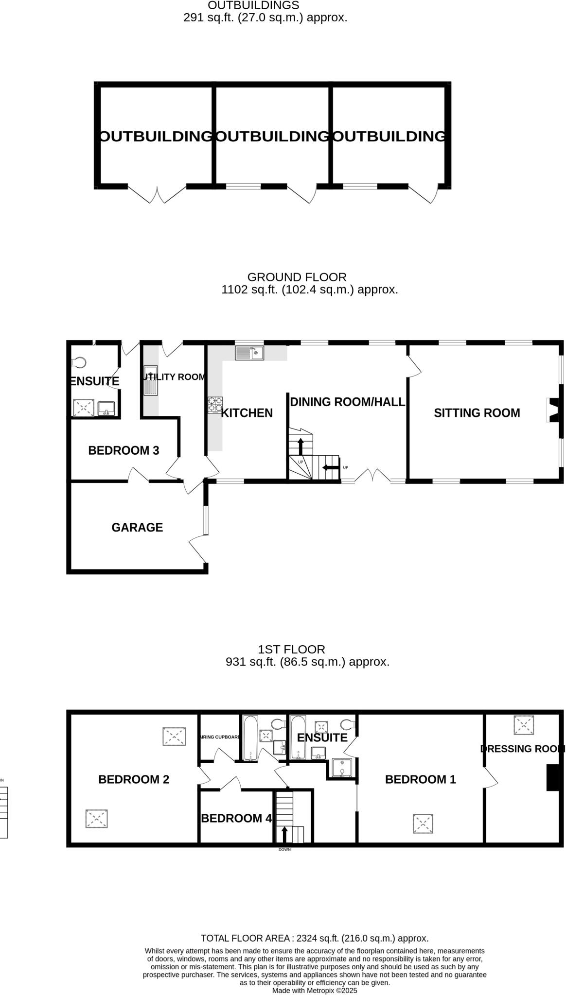
4 bedroom barn conversion with exposed timbers and high ceilings
This substantial barn conversion combines character features with practical family living and useful outbuildings. High ceilings, exposed timbers and large reception rooms create a bright, airy feel, while the fitted kitchen, utility room and generous bedroom space suit everyday family life. The layout includes a ground-floor bedroom with ensuite and scope to create a self-contained annexe, subject to planning consent.
Externally the plot is a major asset: private gardens, stabling, several outbuildings and approximately a 1‑acre pasture paddock provide genuine smallholding and equestrian potential. Open views across adjoining farmland and the Irfon valley give a strong rural aspect and privacy, with driveway access and room for parking.
Practical considerations are clear and factual. Heating is by electric storage heaters and the main fuel is electricity, which may mean higher running costs. Broadband speeds are very slow — unsuitable for reliable remote working without alternative solutions. The EPC is currently D and council tax is above average. The property sits in a remote, ageing rural community and the local area shows higher deprivation indices, which may affect services and resale dynamics.
Overall this is a characterful, large-family home or smallholding with flexibility for ancillary accommodation and equestrian use. Buyers should budget for energy costs, check planning options for any annexe or change of use, and consider broadband upgrades if needed.
4 bedroom barn conversion for sale in Glanirfon, Llanwrtyd Wells, Powys, LD5 — £475,000 • 4 bed • 3 bath • 2324 ft²
4 bedroom semi-detached house for sale in Pencelli, Brecon, Powys, LD3 — £825,000 • 4 bed • 3 bath • 2261 ft²
4 bedroom barn conversion for sale in Pencelli, Brecon, Powys, LD3 — £725,000 • 4 bed • 2 bath • 1962 ft²
4 bedroom detached house for sale in Cantref, Brecon, Powys, LD3 — £825,000 • 4 bed • 4 bath • 2659 ft²
3 bedroom barn conversion for sale in Newbridge-on-Wye, Llandrindod Wells, Powys, LD1 — £445,000 • 3 bed • 2 bath • 1119 ft²
5 bedroom detached house for sale in Newbridge-On-Wye, Llandrindod Wells, Powys, LD1 — £795,000 • 5 bed • 5 bath • 3520 ft²


































































































































































