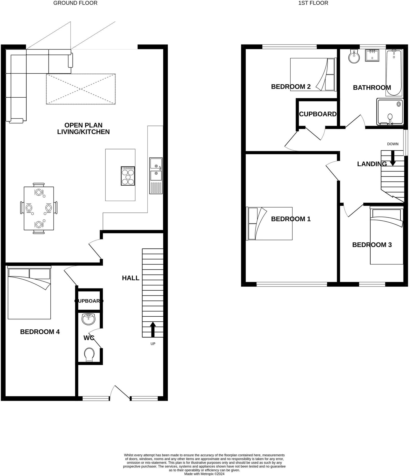
**Standout Features:**
- Spacious 4-bedroom semi-detached house
- Modern open plan living/kitchen with bi-fold doors
- Extensive renovations, including large entrance hall
- Stunning views over Telscombe Tye towards the sea
- Well-maintained with contemporary design
- Landscaped gardens, off-street parking for 2 cars
- Convenient ground floor double bedroom and cloakroom
**Potential Downsides:**
- Average mobile signal
- Proximity to on-street elements may affect parking ease
- Average-sized rooms may not suit those seeking more expansive spaces
This beautifully presented 4-bedroom semi-detached home at 99a Cissbury Crescent is a prime opportunity for families or investors seeking a chic, move-in ready space. Enjoy the bright and airy feel of the impressive open plan living/kitchen, spanning a generous 27’ x 20’, complete with bi-fold doors that open onto a landscaped private garden. The stylish kitchen is a chef's dream, featuring modern white cabinetry, a central island, and built-in appliances, perfect for entertaining guests and family gatherings.
With a double bedroom and cloakroom conveniently located on the ground floor, and three well-proportioned bedrooms upstairs offering breathtaking views, this property is adapted for comfortable family living. The central location further provides access to highly-rated local schools and a welcoming community environment. At £545,000, this inviting home combines modern luxury with daily practicality in a tranquil yet easily accessible suburb. Don't miss out—properties like this are in high demand!
4 bedroom detached house for sale in Cissbury Crescent, Saltdean, BN2 8EN, BN2 — £750,000 • 4 bed • 3 bath • 1597 ft²
5 bedroom semi-detached house for sale in Lincoln Avenue, Peacehaven, BN10 — £425,000 • 5 bed • 1 bath • 1478 ft²
3 bedroom semi-detached house for sale in Brambletyne Avenue, Saltdean, BN2 8EL, BN2 — £425,000 • 3 bed • 1 bath • 807 ft²
4 bedroom link detached house for sale in Foxhill, Peacehaven, East Sussex, BN10 — £395,000 • 4 bed • 1 bath • 1142 ft²
4 bedroom semi-detached house for sale in Bannings Vale, Saltdean, Brighton, BN2 — £535,000 • 4 bed • 2 bath • 1435 ft²
4 bedroom detached house for sale in Central Avenue, Telscombe Cliffs, BN10 7NB, BN10 — £619,950 • 4 bed • 2 bath • 1901 ft²


































































































































