Link-detached family home with garden, garage and scope to modernise.
Three bedrooms with ensuite to master
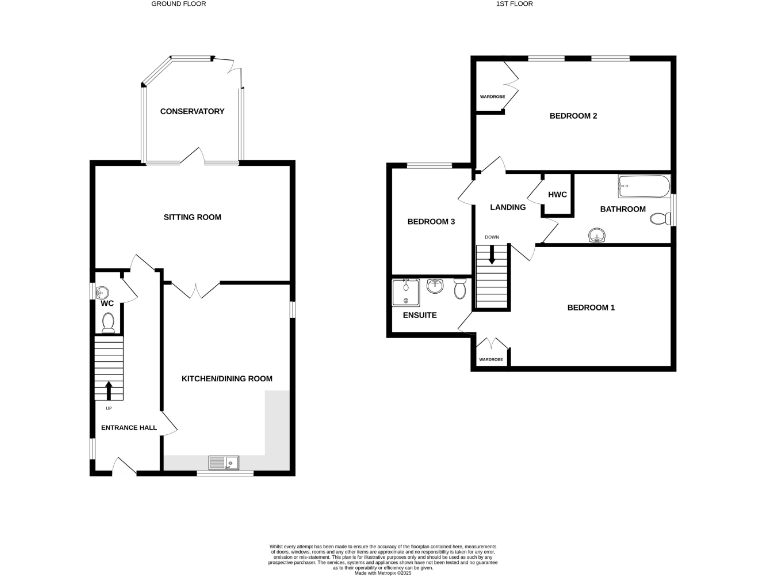
Set on a decent plot in a prosperous suburban pocket of Tiptree, this three-bedroom link-detached house offers practical family living and immediate scope to modernise. The ground floor connects a kitchen/diner to a large lounge and conservatory, giving flexible daily space and easy garden access. Upstairs there are three bedrooms, with an ensuite to the master and a separate family bathroom.
Practical benefits include off-street parking for 2–3 cars, a single garage with internal/external access, freehold tenure and no local flood risk. The property sits in a low-crime, affluent area with excellent mobile signal and several well-rated primary schools nearby, making it suitable for families wanting space and local stability.
The house requires light to moderate renovation: décor, flooring and some modernisation are needed to bring the kitchen, bathrooms and living areas up to contemporary standards. Broadband speeds are reported slow — worth checking for remote working needs. Overall size is modest (approx. 637 sq ft), so it suits buyers seeking a manageable family home rather than a large detached property.
3 bedroom semi-detached house for sale in Heycroft Way, Tiptree, Colchester, CO5 — £400,000 • 3 bed • 2 bath • 1351 ft²
4 bedroom link detached house for sale in Kiltie Road, Tiptree, Colchester, Essex, CO5 — £400,000 • 4 bed • 2 bath • 1060 ft²
4 bedroom detached house for sale in Winston Avenue, Tiptree, Colchester, CO5 — £525,000 • 4 bed • 2 bath • 970 ft²
3 bedroom detached house for sale in Chapel Road, Tiptree, Colchester, CO5 — £350,000 • 3 bed • 1 bath • 1143 ft²
2 bedroom terraced house for sale in Downton Walk, Tiptree, CO5 — £300,000 • 2 bed • 1 bath • 754 ft²
3 bedroom semi-detached house for sale in Lavender Close, Tiptree, Colchester, CO5 — £340,000 • 3 bed • 1 bath • 607 ft²


























































































