**Standout Features:**
- Investment/development opportunity in a prime location
- Detached property currently configured as two maisonettes
- Stunning sea views across the Estuary and Old Leigh
- Spacious double garage and private parking available
- Generous rear garden area for potential landscaping or leisure
- Chain-free sale for a quicker transaction
- Property requires renovation but has great potential for updates
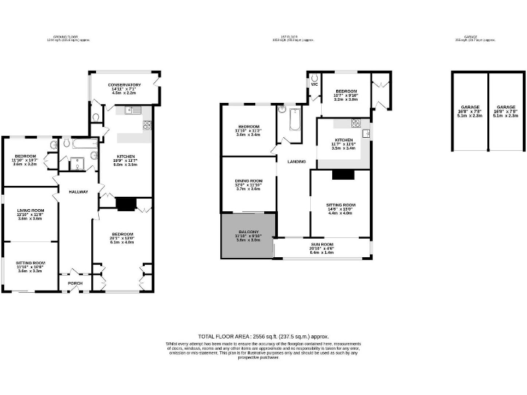
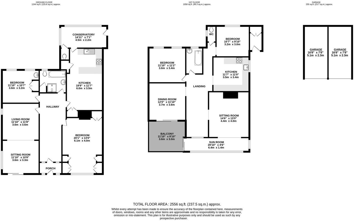
This spacious detached property, currently structured as two maisonettes, offers a unique investment and development opportunity just steps from the seaside. Generously sized at 2,302 sq ft, it boasts fabulous views across the Estuary with the charm of Tudor Revival architecture. The ground-floor maisonette has been well-maintained, featuring a bright living room, a modern kitchen/dining area, two double bedrooms, and a conservatory. The first-floor maisonette, while requiring some updating, presents an equally spacious layout with two reception rooms, a sun room, and a balcony to enjoy the sweeping views.
Positioned in a desirable coastal neighborhood, the property is complete with a double garage and private parking, alongside a rear garden that invites a touch of personal landscaping. The proximity to local amenities, highly-rated schools, and excellent transport links—including quick access to London—makes this a prime choice for families or investors looking to enhance the property’s value. While renovations are necessary, the potential to boost comfort and future resale value is immense. With no onward chain, don’t miss this rare opportunity—schedule a viewing now to envision the possibilities!
2 bedroom apartment for sale in Grand Parade, Leigh-On-Sea, SS9 — £500,000 • 2 bed • 1 bath
4 bedroom detached house for sale in Marine Parade, Leigh-on-Sea, SS9 — £1,100,000 • 4 bed • 2 bath • 2733 ft²
4 bedroom detached house for sale in Marine Parade, Leigh-on-Sea, SS9 — £1,450,000 • 4 bed • 2 bath • 2791 ft²
4 bedroom house for sale in Marine Parade, Leigh-On-Sea, Essex, SS9 — £975,000 • 4 bed • 1 bath • 3864 ft²
4 bedroom terraced house for sale in Rectory Grove, Leigh-On-Sea, SS9 — £450,000 • 4 bed • 1 bath • 1206 ft²
Land for sale in Leigh Hill, Leigh-on-sea, SS9 — £1,000,000 • 1 bed • 1 bath • 7642 ft²


















































































































































































