Bright 2-bed with private 27ft landscaped garden and modern comforts.
Recently renovated throughout with modern fittings
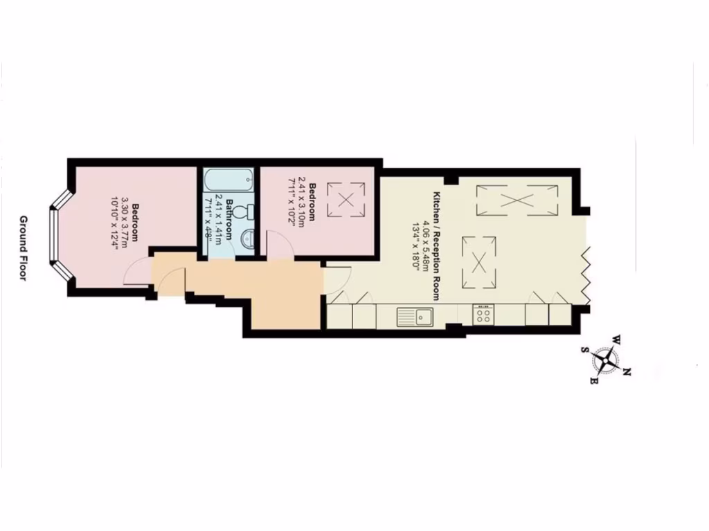
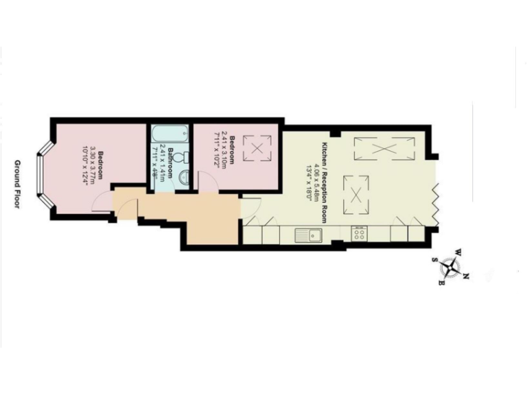
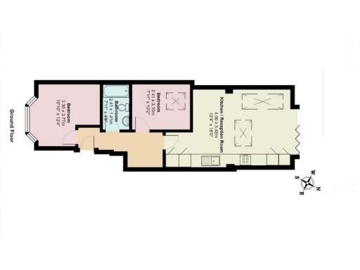
This recently refurbished ground-floor two-bedroom flat offers a bright open-plan kitchen/lounge/diner and a private landscaped 27ft garden — a rare outdoor space for a central Walthamstow property. Contemporary finishes include underfloor heating in the kitchen/reception, air conditioning, a modern bathroom with a smart Japanese toilet, smart locks and an EV car charger.
At about 57 sqm (613 sq ft), the layout suits first-time buyers or couples seeking low-maintenance city living with quick access to St James and Walthamstow Central stations, local shops, cafes and good primary schools nearby. Natural light floods the enlarged kitchen-family space through large windows and skylights, and wooden floors give a cohesive, modern feel throughout.
Buyers should note this is a leasehold flat in a mid-terrace building constructed before 1900 with solid brick walls (no known cavity insulation). The overall footprint is small compared with larger family homes, and the wider area scores as deprived — though local amenities and transport remain strong. Energy rating C is good for a period property, but the solid walls may affect long-term heating costs.
Overall this is a move-in-ready city flat with outdoor space and modern systems — appealing to first-time purchasers wanting a low-effort home close to Walthamstow’s amenities, while being realistic about the size, tenure and period construction limitations.
2 bedroom flat for sale in Erskine Road, Walthamstow, E17 — £550,000 • 2 bed • 1 bath • 586 ft²
2 bedroom flat for sale in Brighton Avenue, Walthamstow, London, E17 — £475,000 • 2 bed • 1 bath • 536 ft²
2 bedroom flat for sale in Flanders Court, Walthamstow, London, E17 — £350,000 • 2 bed • 1 bath • 550 ft²
2 bedroom flat for sale in Palmerston Road, Walthamstow, E17 — £450,000 • 2 bed • 1 bath • 743 ft²
2 bedroom flat for sale in Butterfields, Walthamstow, London, E17 — £425,000 • 2 bed • 1 bath • 544 ft²
1 bedroom flat for sale in Brighton Avenue, Walthamstow, London, E17 — £375,000 • 1 bed • 1 bath • 573 ft²










































































































































