Large garden and parking; ideal for families wanting refurbishment potential.
Backs onto Crane Park with private, south‑facing rear garden
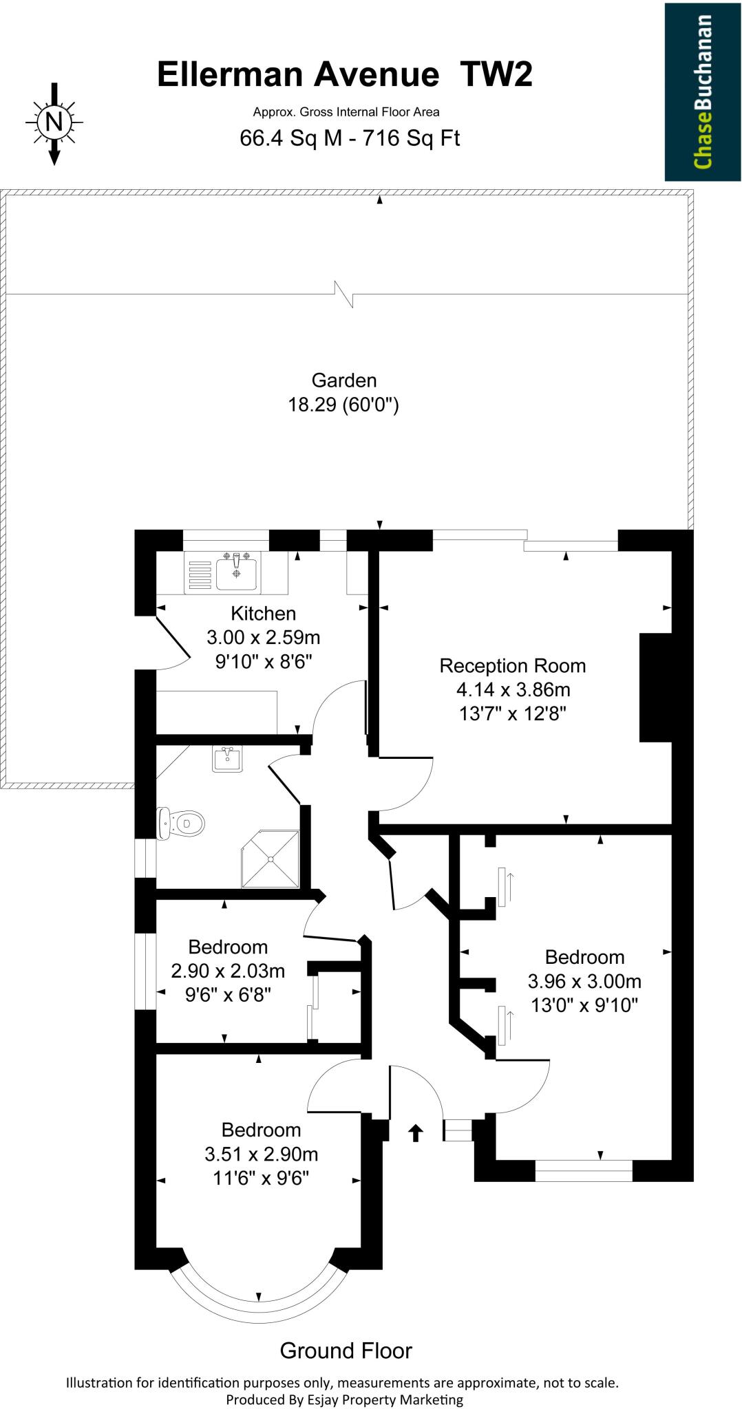
Set on the favoured side of Ellerman Avenue and backing onto Crane Park, this single‑storey semi‑detached bungalow offers a rare combination of outdoor space and scope for improvement. The large south‑facing rear garden and paved driveway with off‑street parking for several cars are standout features for family life and entertaining.
Internally the accommodation is compact (c.716 sq ft) and presented in fair but dated condition. The house currently provides a reception room, three bedrooms, kitchen and one bathroom — an efficient layout that will suit buyers prepared to modernise. There is clear potential to remodel and extend, subject to planning permission, to increase living space and value.
Practical considerations: the property is solid brick as built with no confirmed wall insulation and features older fixtures and fittings that will need updating. Council tax is above average for the area. Chain free, it represents a good opportunity for purchasers who want a project in a very desirable Twickenham location with excellent local schools and transport links.
This home will particularly appeal to growing families seeking a large private garden and long‑term scope to create a more generous family house through refurbishment or extension (STPP). Buyers seeking a fully move‑in modern finish should budget for improvement works.
2 bedroom bungalow for sale in Ellerman Avenue, Twickenham, TW2 — £725,000 • 2 bed • 1 bath • 989 ft²
4 bedroom semi-detached house for sale in Ellerman Avenue, Twickenham, TW2 — £750,000 • 4 bed • 2 bath • 1290 ft²
3 bedroom bungalow for sale in Glasbrook Avenue, Twickenham, TW2 — £549,950 • 3 bed • 1 bath • 871 ft²
3 bedroom detached bungalow for sale in Ellerman Avenue, Twickenham, TW2 — £699,950 • 3 bed • 1 bath • 1740 ft²
3 bedroom semi-detached house for sale in Lyndhurst Avenue, Whitton, TW2 — £775,000 • 3 bed • 2 bath • 997 ft²
3 bedroom bungalow for sale in Lyndhurst Avenue, Whitton, TW2 — £550,000 • 3 bed • 1 bath • 675 ft²






































































