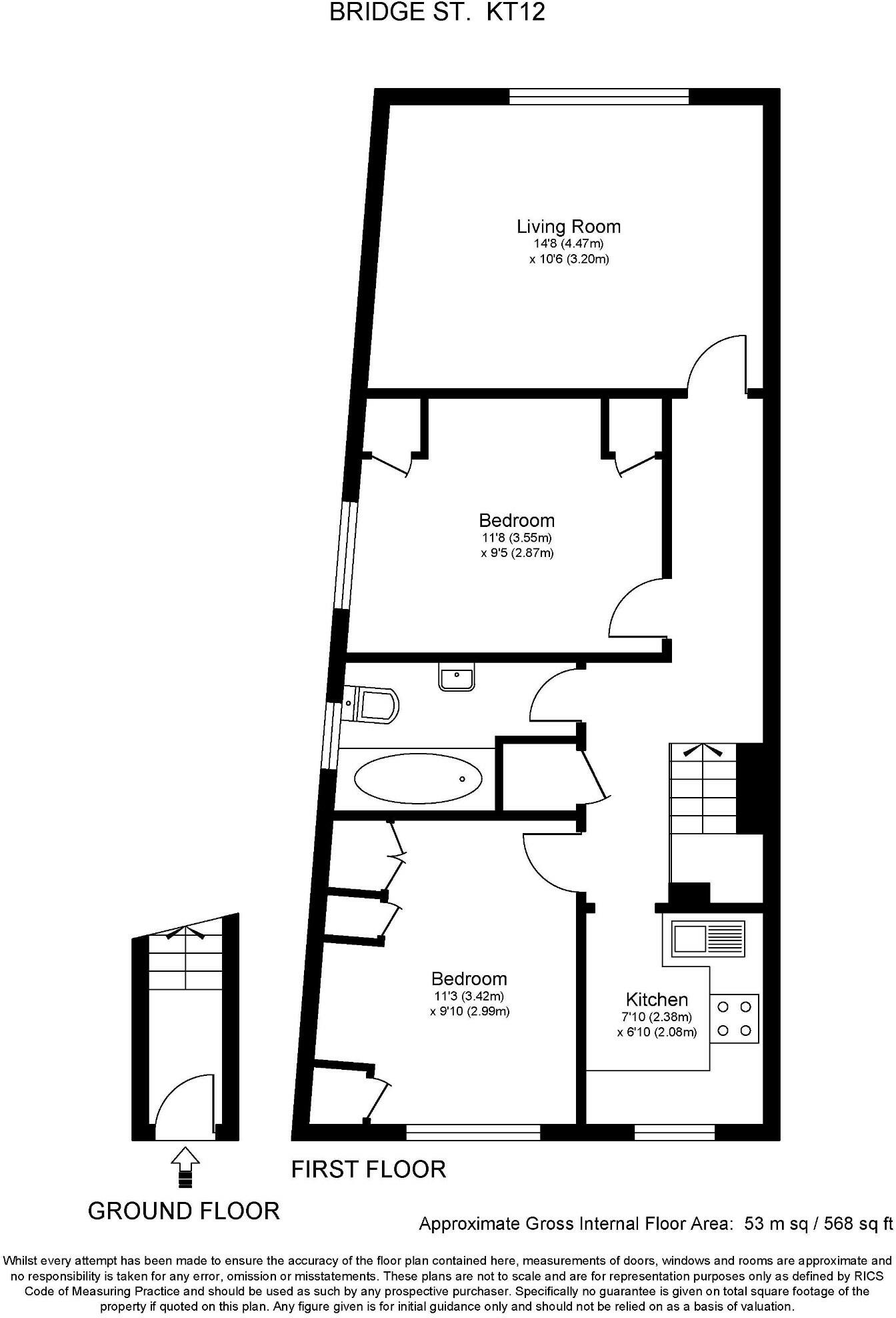
**Standout Features:**
- Prime town center location in Walton-on-Thames
- Two spacious double bedrooms
- Separate lounge and kitchen with white goods
- Gas central heating and double-glazed windows
- Low ground rent and no service charge
- Cash buyers only due to leasehold status (58 years remaining)
- No onward chain, ready for immediate possession
**Potential Downsides:**
- Property in need of refurbishment
- Low lease could limit mortgage options
- Above-average crime rate in the local area
This two-bedroom maisonette nestled in the heart of Walton-on-Thames presents an exciting opportunity for cash buyers seeking renovation potential in a vibrant location. With ample space featuring two double bedrooms, a sizeable lounge, and a separate kitchen, this property offers room to shape it into your ideal living space. Enjoy the ease of having local bars, restaurants, and amenities just a short stroll away.
While the property requires refurbishment and has a remaining lease of approximately 58 years, it’s a blank canvas for those with vision. Priced attractively under £200,000, this homes-in-waiting is chain-free, allowing for a seamless move. With fast broadband and excellent mobile signals, it remains a viable option for young families or investors looking to tap into the rental market. Grab this rare opportunity to create your own slice of town center living!
1 bedroom flat for sale in Manor Road, Walton On Thames, Surrey, KT12 — £250,000 • 1 bed • 1 bath • 380 ft²
2 bedroom maisonette for sale in Terrace Road, Walton-On-Thames. , KT12 — £285,000 • 2 bed • 1 bath • 701 ft²
2 bedroom apartment for sale in Church Street, Walton-on-Thames, Surrey, KT12 — £270,000 • 2 bed • 1 bath • 880 ft²
2 bedroom apartment for sale in Church Street, Walton-on-Thames, KT12 — £270,000 • 2 bed • 1 bath • 880 ft²
2 bedroom maisonette for sale in Terrace Road, Walton-on-Thames, KT12 — £285,000 • 2 bed • 1 bath • 701 ft²
2 bedroom flat for sale in Regnolruf Court, Church Street, Walton-On-Thames, Surrey, KT12 — £200,000 • 2 bed • 1 bath • 679 ft²










