**Standout Features:**
- Generous 3,086 sq ft freehold office building
- Planning consent for conversion into three self-contained apartments
- Rear off-street parking for seven vehicles
- Chain-free and available with vacant possession
- Excellent mobile signal and fast broadband speeds
**Potential Downsides:**
- Located in an area with high crime rates
- Needs renovation to transition from commercial to residential use
- Urban area may have some noise consistency due to its vibrant environment
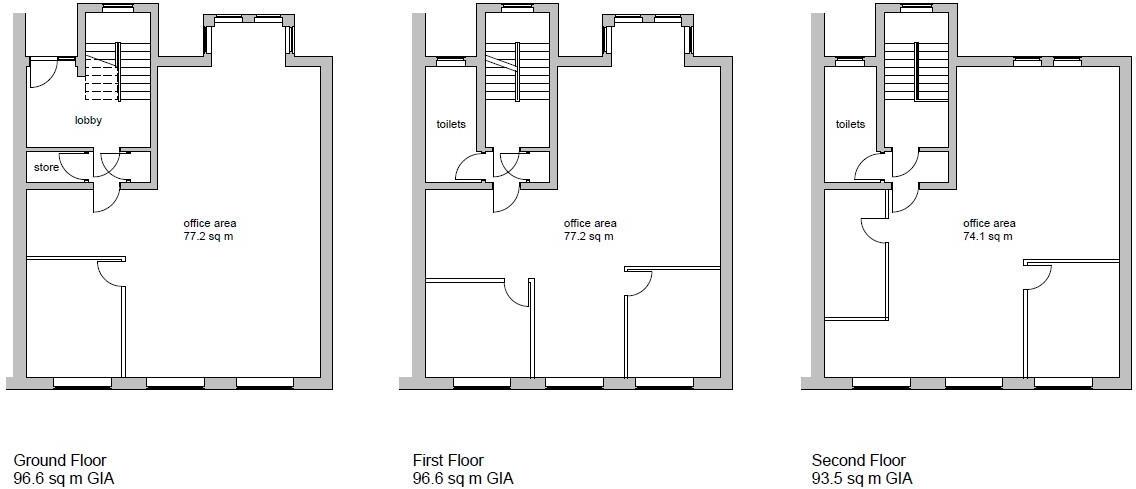
Discover the impressive potential of this spacious three-storey office building located at 8 Burnell Road, boasting an expansive footprint of 3,086 square feet. Positioned in a prime area of North Sutton, this brick façade property is perfect for investors looking to capitalize on its granted planning consent for conversion into three self-contained three-bedroom apartments. With parking available for up to seven vehicles, it strikes a balance between convenience and spacious living solutions.
Within walking distance to local amenities and renowned schools such as All Saints Benhilton CofE Primary and Sutton Grammar School, this property combines accessibility with family-oriented appeal. Although situated in a high-crime area, its versatility allows for creative redevelopment, making it ideal for those seeking a unique investment opportunity. Be quick to explore the myriad possibilities—properties of this nature rarely stay on the market for long!
Office for sale in 48-50 Grove Road, Sutton, Surrey, SM1 — £425,000 • 1 bed • 1 bath • 2221 ft²
1 bedroom apartment for sale in Burnell Road, Sutton, SM1 — £210,000 • 1 bed • 1 bath • 438 ft²
2 bedroom maisonette for sale in Burnell Road, Sutton, SM1 — £425,000 • 2 bed • 1 bath • 1200 ft²
Commercial property for sale in Mulgrave Road, Sutton, Surrey, SM2 — £1,500,000 • 1 bed • 3 bath • 5255 ft²
High street retail property for sale in 1-9, Cheam Road, Sutton , SM1 1SN, SM1 — £1,700,000 • 1 bed • 1 bath
2 bedroom apartment for sale in Throwley Way, Sutton, SM1 — £315,000 • 2 bed • 1 bath • 584 ft²






















































































