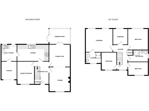
**Standout Features:**
- Executive five-bedroom detached home by Golding Homes
- Quiet, secluded lane in the desirable Kingswood area
- Spacious and stylish interior design with high-quality finishes
- Master bedroom with en suite and four additional well-proportioned bedrooms
- Bright conservatory for extra living or entertaining space
- Generously sized beautifully maintained rear garden
- Ample off-street parking with a private driveway and double garage
- Close to Laindon Station, perfect for commuters
- Surrounded by highly-rated primary schools
This stunning five-bedroom detached family home in Kingswood offers both space and style, nestled on a quiet lane that guarantees privacy and tranquility. The elegantly designed interior boasts a generous master suite with an en suite bathroom, alongside four additional spacious bedrooms. The bright conservatory invites ample natural light, serving as a perfect spot for relaxation or entertaining family and friends.
The beautifully maintained rear garden provides an ideal outdoor retreat for families seeking space for play or relaxation. With the added convenience of a private driveway and double garage, this home accommodates all your parking needs. Perfect for commuters, Laindon Station is just a short distance away, enabling easy access to London.
Families will appreciate being surrounded by highly-rated schools, including Ofsted Outstanding options. This property combines comfort and location, making it an exceptional find that caters to both modern living and family needs. Don’t miss your chance to own this elegant and roomy home in a serene yet connected community—schedule your visit today!
4 bedroom detached house for sale in Furrowfelde, Basildon, SS16 — £625,000 • 4 bed • 2 bath • 2368 ft²
4 bedroom detached house for sale in Kenton Way, Langdon Hills, Basildon, SS16 — £500,000 • 4 bed • 2 bath • 946 ft²
5 bedroom detached house for sale in Hillcrest View, Basildon, SS16 — £425,000 • 5 bed • 3 bath • 1396 ft²
4 bedroom semi-detached house for sale in Hawkesbury Bush Lane, Laindon, Basildon, SS16 — £550,000 • 4 bed • 2 bath • 1728 ft²
4 bedroom detached house for sale in Lingcroft, Kingswood, Basildon, Essex, SS16 — £650,000 • 4 bed • 2 bath
4 bedroom detached house for sale in Monmouth Mews, Langdon Hills, SS16 — £560,000 • 4 bed • 2 bath • 1055 ft²










































































































































































