Ready-to-move-in two-bedroom home near shops and schools.
Two double bedrooms with newly fitted en-suite to master
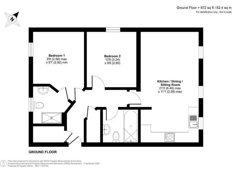
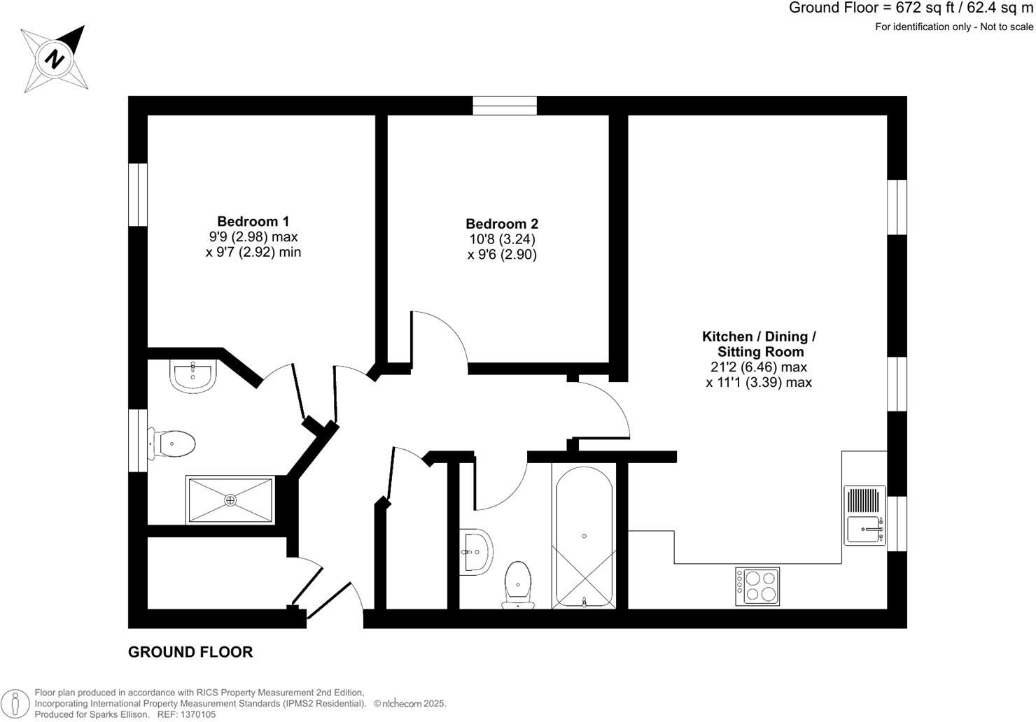
Open-plan kitchen/dining/sitting room, approx 21'2" x 11'1"
Ground-floor position; bright rooms and good natural light
Allocated parking plus multiple visitor bays
Long lease (155 years remaining) and built 2006
Service charge circa £1,839.67pa; ground rent £225pa
Modest communal grounds; no private garden clearly shown
Average broadband speeds; excellent mobile signal
This well-presented two-bedroom ground-floor flat occupies about 672 sqft within a small, modern development on Hursley Road. The open-plan kitchen/dining/sitting room (approx 21'2" x 11'1") creates a bright, flexible living area ideal for everyday life and entertaining. The master bedroom benefits from a newly fitted en-suite and there is a separate family bathroom, so the layout suits sharers, couples or a small family.
Practical running costs are straightforward: gas central heating, UPVC double glazing, and a long lease (155 years from 2006). The property includes one allocated parking space plus multiple visitor bays and modest communal landscaping. Local amenities, good schools and regular bus links make this an easy, convenient location for first-time buyers.
Buyers should note this is a leasehold flat with a service charge of approximately £1,839.67 per year and a ground rent of £225 per year. Broadband speeds are average and there is no clear private garden visible from the listing; communal grounds are modest. Overall, the flat is move-in ready and offers low-maintenance, modern living in an affluent, low-crime area.
2 bedroom flat for sale in Hursley Road, Chandler's Ford, Eastleigh, SO53 — £325,000 • 2 bed • 2 bath • 820 ft²
2 bedroom apartment for sale in Chandlers Ford, SO53 — £185,000 • 2 bed • 1 bath • 582 ft²
2 bedroom flat for sale in Hut Farm Place, Chandler's Ford, Hampshire, SO53 3LR, SO53 — £180,000 • 2 bed • 2 bath • 417 ft²
2 bedroom flat for sale in Hut Farm Place, Chandler's Ford, SO53 — £200,000 • 2 bed • 2 bath • 692 ft²
2 bedroom flat for sale in Hut Farm Place, Chandlers Ford, SO53 — £220,000 • 2 bed • 2 bath • 624 ft²
2 bedroom flat for sale in Hut Farm Place, Chandler's Ford, Eastleigh, SO53 — £195,000 • 2 bed • 2 bath • 689 ft²


































































