**Standout Features:**
- Stunning waterside location in Tuckenhay
- Recently renovated 2-bedroom town house with no chain
- Expansive open-plan living area with a balcony boasting river views
- Ample storage with a garage and utility space
- Proximity to nature and recreational opportunities
- Ideal for a holiday getaway or as a permanent residence
**Potential Downsides:**
- Average mobile signal and slow broadband speeds
- Crime rate is very low, but area amenities are limited
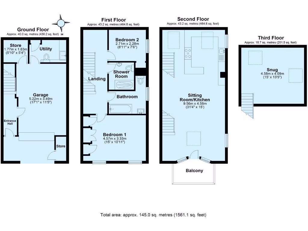
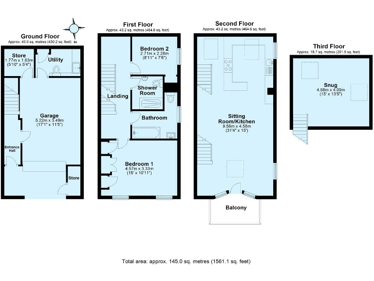
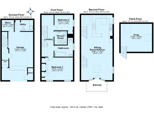
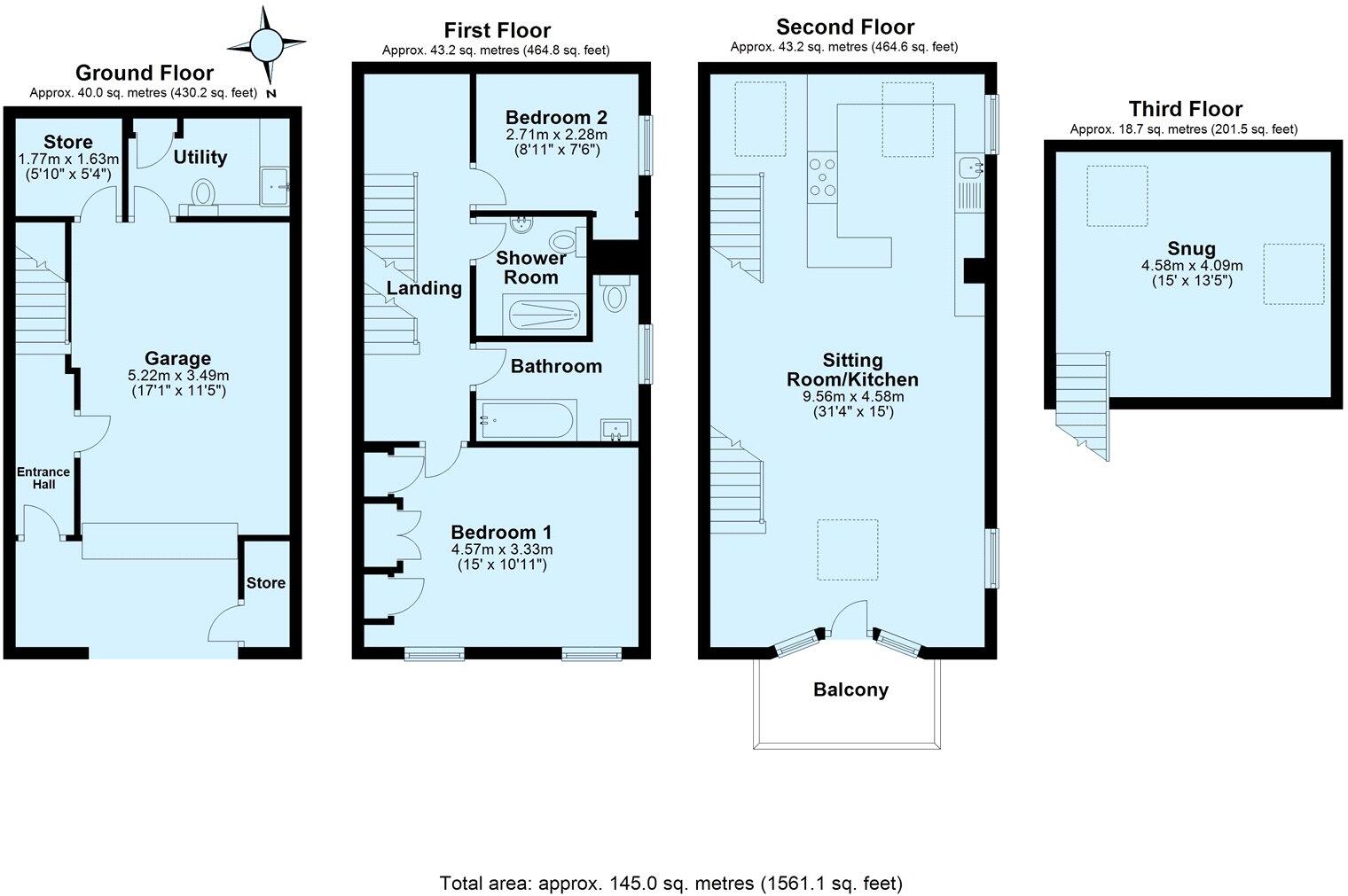
Set in the idyllic village of Tuckenhay, this beautifully renovated 2-bedroom town house offers a perfect blend of comfort and tranquility. Spanning four levels, the property features a bright open-plan living space on the third floor, complete with a stylish kitchen equipped with granite surfaces and integrated appliances. Step outside onto your generous balcony to soak up breathtaking river views, ideal for al fresco dining or relaxing with a book.
The upper floor includes two spacious double bedrooms, both recently refurbished, allowing for inviting, comfortable living. A well-placed garage on the ground floor enhances convenience, perfect for storing outdoor equipment like boats or bicycles. With shared access to a slipway and nearby opportunities for indulging in recreational activities like watersports or crabbing, this property is tailored for nature lovers. While the area boasts a serene lifestyle, amenities are somewhat limited, making this a fantastic opportunity for those seeking a peaceful retreat or a lock-up-and-leave holiday home. Don't miss out on this unique gem that embodies the charm of Devon riverside living!
2 bedroom flat for sale in The Quay, Tuckenhay, Totnes, TQ9 — £350,000 • 2 bed • 1 bath • 1480 ft²
2 bedroom semi-detached house for sale in Steamer Quay Road, Totnes, TQ9 — £695,000 • 2 bed • 2 bath • 1352 ft²
2 bedroom terraced house for sale in Dittisham Court, Dittisham, TQ6 — £410,000 • 2 bed • 2 bath • 880 ft²
3 bedroom detached house for sale in Warfleet, Dartmouth, TQ6 — £1,350,000 • 3 bed • 2 bath • 1009 ft²
2 bedroom semi-detached house for sale in Above Town, Dartmouth, TQ6 — £445,000 • 2 bed • 1 bath • 723 ft²
3 bedroom semi-detached house for sale in Bow Creek, Tuckenhay, Totnes, TQ9 — £350,000 • 3 bed • 1 bath • 953 ft²






















































