Bright first-floor retirement flat with long lease, central location and on-site support..
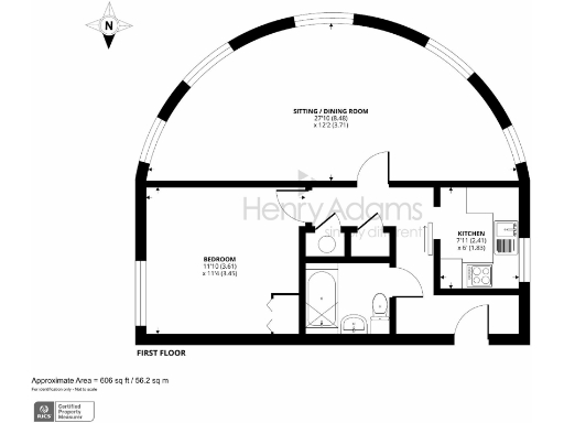
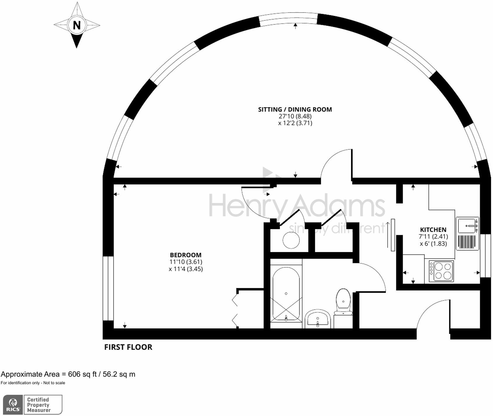
South-facing semi-circular sitting/dining room with abundant natural light
Long lease approx. 117 years remaining
Resident manager, 24-hour Careline and emergency pull cords throughout
Lift to all floors; communal lounge and laundry on-site
Service charge is high at £5,699 per year
Main heating via electric storage heaters (may raise energy costs)
Parking available in rear car barn on a first-come basis
Local area records very high crime levels — consider personal security
A bright, south-facing one-bedroom retirement flat on the first floor, positioned in the heart of Chichester just steps from the shopping precinct and cathedral. The semi-circular sitting/dining room floods with natural light from multiple windows; a separate kitchen looks out over well-kept communal gardens. The building offers practical retirement amenities including a residents’ lounge, communal laundry, lift to all floors and 24-hour emergency Careline with a resident manager on site.
This apartment suits someone downsizing who values central convenience and on-site support. The long lease (approx. 117 years remaining) and EPC C rating are positive ownership features. Parking is available in a covered car barn on a first-come, first-served basis, and the flat is connected to fast broadband with excellent mobile signal.
Buyers should note important running costs and heating specifics: the annual service charge is relatively high (£5,699) and main heating is by electric storage heaters, which can increase energy costs compared with gas-heated properties. Ground rent is currently low but rises on scheduled dates; full details should be checked. The area records very high crime levels, which may concern some buyers despite the central, well-served location.
Overall, Rose Court offers a secure, sociable retirement setting with useful communal facilities and a long lease, balanced against higher service charges, electric heating, and local crime statistics. Viewing is recommended for those seeking a centrally located, supported retirement apartment with scope to modernise the interior.
1 bedroom retirement property for sale in St. Cyriacs, Rose Court St. Cyriacs, PO19 — £125,000 • 1 bed • 1 bath • 452 ft²
1 bedroom flat for sale in St. Cyriacs, Rose Court St. Cyriacs, PO19 — £45,000 • 1 bed • 1 bath • 398 ft²
1 bedroom retirement property for sale in St. Cyriacs, Chichester, West Sussex, PO19 1AW, PO19 — £45,000 • 1 bed • 1 bath • 410 ft²
1 bedroom flat for sale in Deanery Close, Chichester, PO19 — £145,000 • 1 bed • 1 bath • 529 ft²
1 bedroom apartment for sale in St. Cyriacs, Chichester, West Sussex, PO19 — £70,000 • 1 bed • 1 bath • 399 ft²
2 bedroom retirement property for sale in Chapel Street, Chichester, PO19 — £215,000 • 2 bed • 1 bath • 693 ft²










































































