**Standout Features:**
- Unique period property with extensive modern extensions
- Separate farmhouse offering potential for annex or guest accommodation
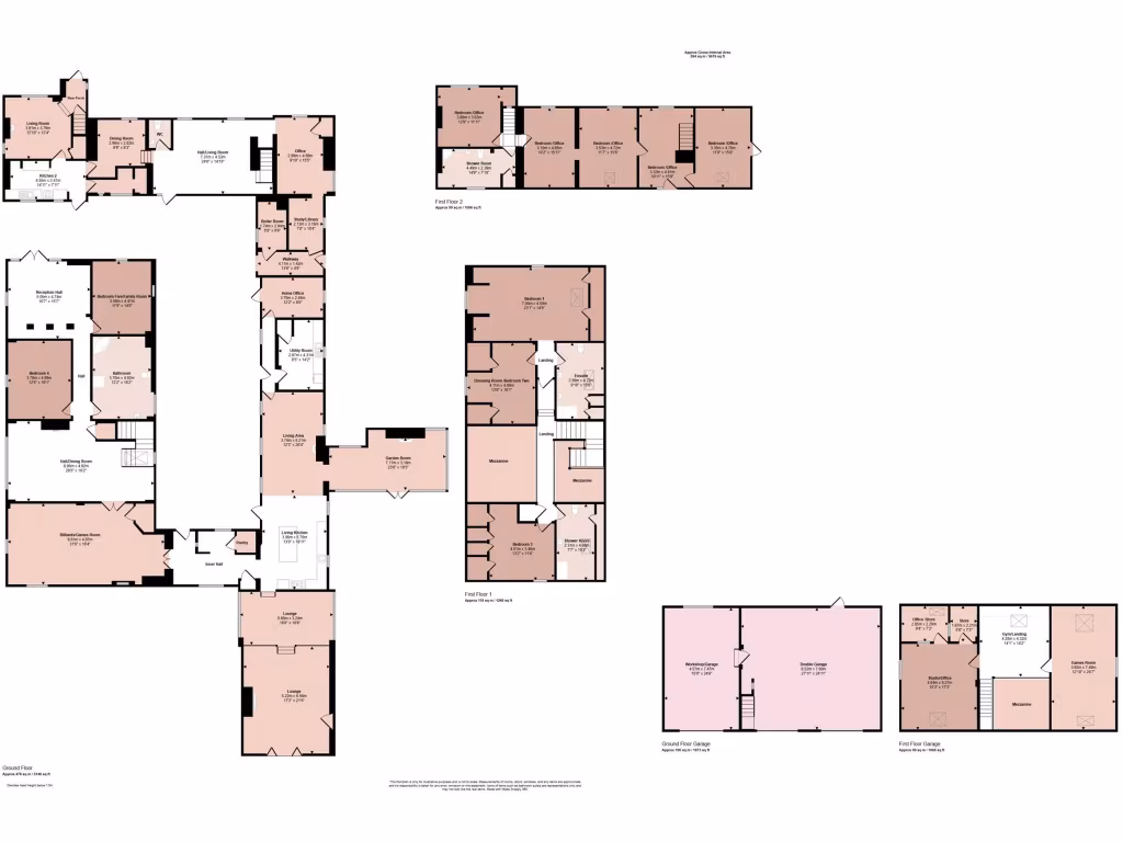
- Total accommodation spans an impressive 9,619 sqft (894sqm) on 5.3 acres
- Six reception rooms and five bedrooms in the main house; four/five bedrooms and additional reception rooms in the farmhouse
- Breathtaking views over the Soar Valley and surrounding countryside
- Delightful stumpery garden with pavilion garden room
- Located near Charnwood Golf Club and outdoor attractions
**Potential Concerns:**
- Energy rating G for both main house and annex, indicating high energy costs
- Older construction materials, primarily granite or whinstone, may require additional insulation updates
**Summary:**
Experience the charm and grandeur of Pocket Gate Farm, a stunning period property nestled in the picturesque Charnwood countryside. Spanning over 9,600 sqft, this meticulously modernized home boasts six spacious reception rooms and five elegant bedrooms, seamlessly blending countryside charm with modern living. The separate farmhouse opens up exciting possibilities as an annex or guest quarters, further enhancing the home's versatility.
Set on 5.3 acres of rolling parkland, the property offers unparalleled views of the Soar Valley, complete with scenic woodlands and delightful gardens—ideal for family leisure or outdoor enthusiasts. Local amenities, picturesque village facilities, and top-rated schools nearby add to the location's allure, making it perfect for families and investors alike.
While energy efficiency may invite consideration, the expansive layout and stunning surroundings make this property a rare gem in the market. Don't miss your chance to own a piece of countryside bliss—properties like this are seldom available for long!
4 bedroom detached house for sale in Brook Road, Woodhouse Eaves, LE12 — £1,500,000 • 4 bed • 3 bath • 3700 ft²
4 bedroom detached house for sale in Warren Hills Road, Abbots Oak, Leicestershire, LE67 — £1,499,999 • 4 bed • 4 bath • 3942 ft²
6 bedroom detached house for sale in One Barrow Lane, Charley, Loughborough, LE12 — £975,000 • 6 bed • 4 bath • 2357 ft²
4 bedroom detached house for sale in Deans Lane, Woodhouse Eaves, Loughborough, LE12 — £1,800,000 • 4 bed • 3 bath • 2465 ft²
4 bedroom detached house for sale in Warren Hills Road, Abbots Oak, Leicestershire, LE67 — £1,595,000 • 4 bed • 5 bath • 3450 ft²
6 bedroom detached house for sale in Leicester Lane, Desford, LE9 — £1,250,000 • 6 bed • 4 bath • 5481 ft²


































































































































































































































































































































































