Sunny first-floor apartment with garage and share of freehold close to promenade.
Direct sea views from lounge and bedroom
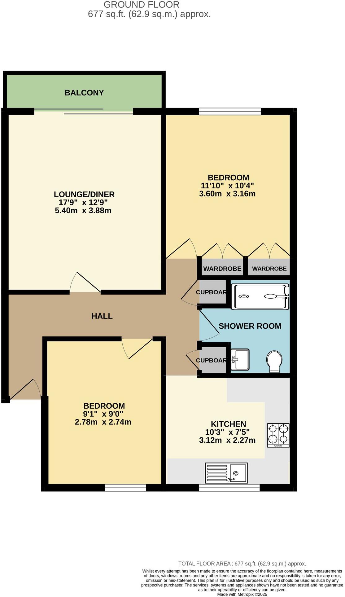
Set directly beside Bexhill’s seafront promenade, this two-bedroom first-floor apartment offers daily, direct sea views and a sunny south-facing balcony — a rare find for a low-rise block. The well-laid-out living room opens onto the balcony to maximise light and the vista; the principal bedroom also enjoys the sea aspect and built-in wardrobes. A modern shower room, fitted kitchen with a wall-mounted boiler, double glazing and gas central heating make this comfortable to live in straightaway.
Practical benefits include a share of freehold, a garage en-bloc and established communal gardens facing Galley Hill green. At about 677 sq ft, the apartment suits downsizers wanting a manageable home with seaside outlooks and easy access to local amenities such as the beach, shops and bus links.
Buyers should note material facts plainly: the building dates from the late 1960s/early 1970s and external cavity walls are assumed to have no added insulation, so upgrading thermal performance may be worthwhile. Broadband speeds are slow and recorded local crime levels are above average — factors to consider if connectivity and perceived security are priorities. The communal-retirement classification suggests a mature resident mix and quieter hours.
Overall this is a practical, well-presented seaside flat with scope to improve energy efficiency. It will appeal to buyers seeking a compact, low-maintenance home near the water, or investors targeting coastal rental demand, bearing in mind the connectivity and neighbourhood considerations.
2 bedroom apartment for sale in West Parade, Bexhill-on-Sea, TN39 — £269,950 • 2 bed • 1 bath • 841 ft²
2 bedroom flat for sale in West Parade, Bexhill-On-Sea, TN39 — £315,000 • 2 bed • 1 bath • 591 ft²
2 bedroom flat for sale in Sutton Place, Bexhill on Sea, TN40 — £265,000 • 2 bed • 1 bath • 765 ft²
2 bedroom apartment for sale in West Parade , Bexhill On Sea, TN39 — £320,000 • 2 bed • 1 bath • 908 ft²
2 bedroom apartment for sale in Bedford Avenue, Bexhill-on-Sea, TN40 — £430,000 • 2 bed • 2 bath • 961 ft²
2 bedroom flat for sale in Sutton Place, Bexhill-on-Sea, TN40 — £235,000 • 2 bed • 1 bath • 640 ft²






















































































