**Standout Features:**
- **Size**: 0.4 acres with a large, rectangular footprint.
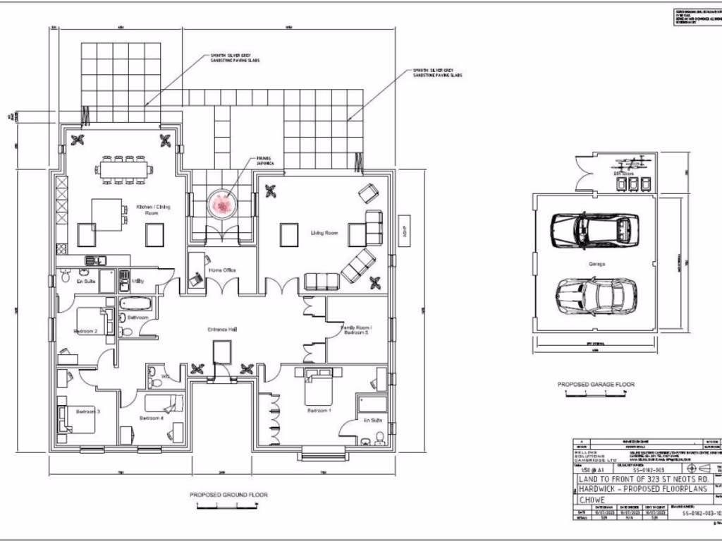
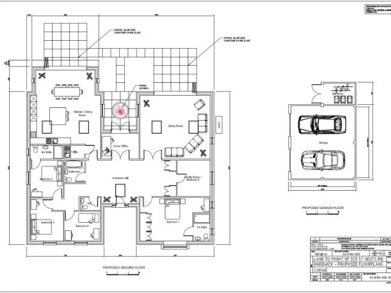
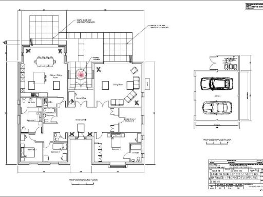
- **Planning Permission**: Full permission for a spacious 2300 sq. ft, 4-bedroom detached bungalow plus additional family room or bedroom 5.
- **Location**: Quiet, non-estate position near Cambridge Science Park (10 min away).
- **Gardening Potential**: Mature trees and designated ecological amenity space.
- **Parking**: Includes a double garage and cycle store.
- **Environment**: Low crime rate, affluent area with excellent mobile signal, though slow broadband.
**Summary Description:**
Discover an exceptional opportunity to build your dream home on this expansive 0.4-acre plot with full planning permission for a 2300 sq. ft, four-bedroom bungalow plus a versatile family room/bedroom. Nestled in a serene, non-estate position just minutes from the innovation-driven Cambridge Science Park, this prime plot boasts a lovely wide frontage and mature trees that offer a natural feel alongside privacy from neighbors.
Your future home will include thoughtfully-designed living spaces with open-concept areas catering to modern lifestyles, alongside an ample double garage and cycle store. With established hedges and potential for extensive landscaping, this property offers not just a place to live but a lifestyle waiting to be crafted. Enjoy the benefits of being located in a well-served suburb, with excellent schools nearby, making it perfect for families or investors looking for a solid development opportunity. Don’t miss out on this rare chance to invest in a spacious plot that blends tranquility, potential, and prime location!
Plot for sale in St. Neots Road, Hardwick, CB23 — £400,000 • 1 bed • 1 bath • 2800 ft²
Plot for sale in Pepys Close, Girton, CB3 — £260,000 • 1 bed • 1 bath • 1750 ft²
Land for sale in School Lane, Aldreth, CB6 — £300,000 • 1 bed • 1 bath • 3200 ft²
Plot for sale in St. Neots Road, Hardwick, CB23 — £250,000 • 1 bed • 1 bath • 2160 ft²
Land for sale in Cambridge Road, Caxton, Cambridge, CB23 — £275,000 • 1 bed • 1 bath
Land for sale in New Road, Over, CB24 — £200,000 • 1 bed • 1 bath


























