Established petting farm with shop, caravans and growth potential near John O' Groats.
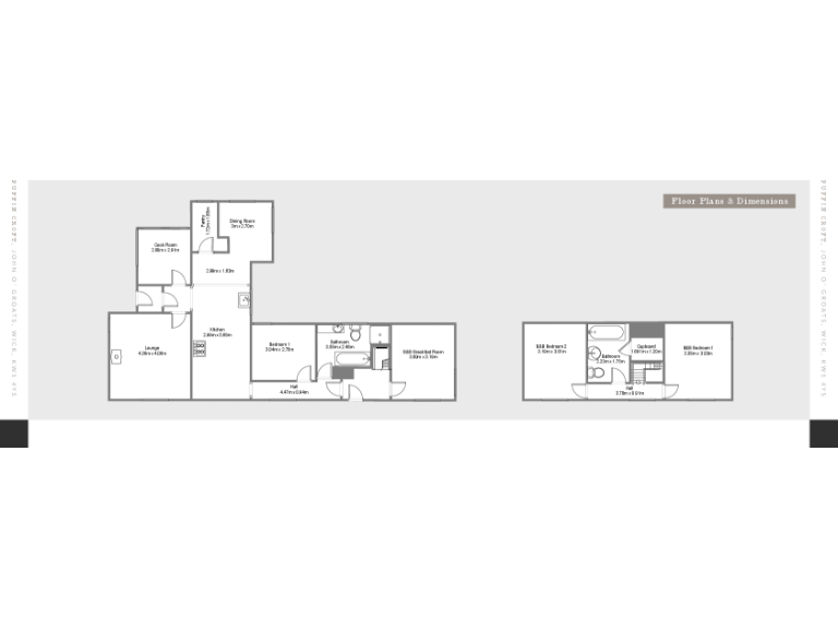
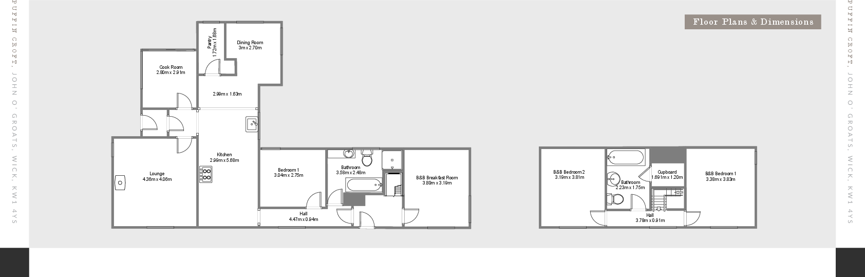
Freehold coastal croft with extensive outbuildings and yards
Set on a large coastal croft close to John O' Groats, this freehold commercial property combines an established visitor attraction with multiple income streams and clear development upside. The site includes a popular 4-star accredited petting farm that draws tourists year-round, a refurbished on-site shop, two serviced caravans, traditional stone barns, and several modern outbuildings — creating immediate trading capacity and scope for growth.
The principal dwelling and B&B accommodation have been recently upgraded with solid oak doors, new carpets (2019), and an air-source heat pump (2019) for improved efficiency. Practical features include a log burner in the living room and a log-burning stove in the kitchen, a new front door (2024), mains services, and a 30-foot commercial polytunnel frame (requires covering) for horticulture or self-sufficiency projects.
Income diversification is straightforward: the petting farm is a proven attraction (TripAdvisor No.2 in John O' Groats), the refurbished shop is ready to trade, and two caravans (four-berth and two-berth) provide immediate guest or staff accommodation. Large paddocks, yards and barns support livestock, storage, or further visitor facilities, while good vehicular access via the A99/A836 supports passing tourist trade.
Notable constraints are factual and significant: the property sits in a very deprived, remote area with slow broadband and only average mobile signal, which may limit digital-dependent businesses. Some buildings and external areas will need ongoing maintenance; the polytunnel requires a cover and some outbuildings are of wooden construction. Prospective buyers should also allow for the realities of running a rural visitor business in a seasonal market and confirm exact internal condition and measurements by viewing and survey.
3 bedroom detached house for sale in Keiss, Wick, Highland. KW1 4XG, KW1 — £275,000 • 3 bed • 1 bath
2 bedroom detached bungalow for sale in Elgon, John O'Groats, KW1 — £155,000 • 2 bed • 2 bath • 1062 ft²
Restaurant for sale in Banks of Orkney, Orkney Islands, KW17 — £800,000 • 6 bed • 1 bath
Commercial property for sale in The Village Inn, Sinclair Bay Apartments, Main Street, Keiss, KW1 4UY, KW1 — £250,000 • 1 bed • 1 bath • 2661 ft²
Land for sale in Glamping Plot next to Duncansby Lighthouse East End, John O' Groats, Wick, KW1 4YS, KW1 — £85,000 • 1 bed • 1 bath • 370 ft²
2 bedroom detached bungalow for sale in Hillside Camping Pods, Auckengill, Wick. KW1 4XP, KW1 — £365,000 • 2 bed • 2 bath


































































































































































