**Standout Features:**
- Large detached building on Marlborough Street
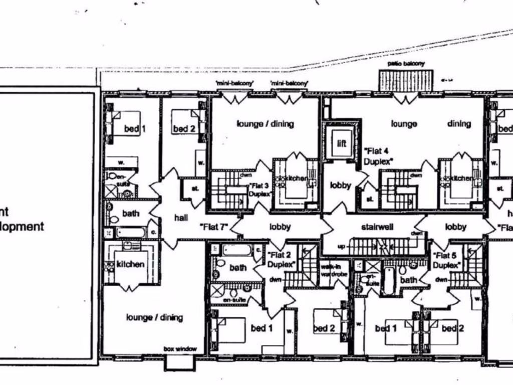
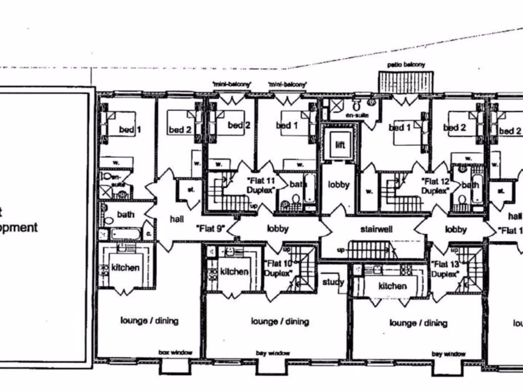
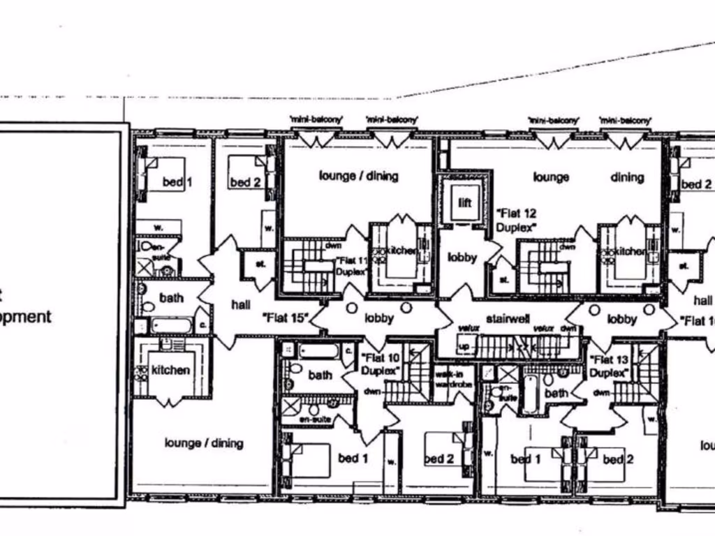
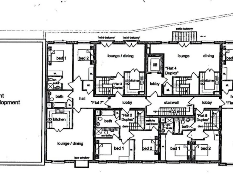
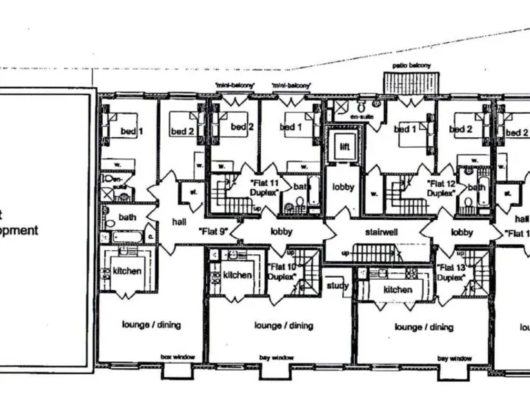
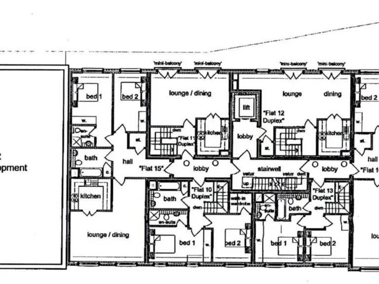
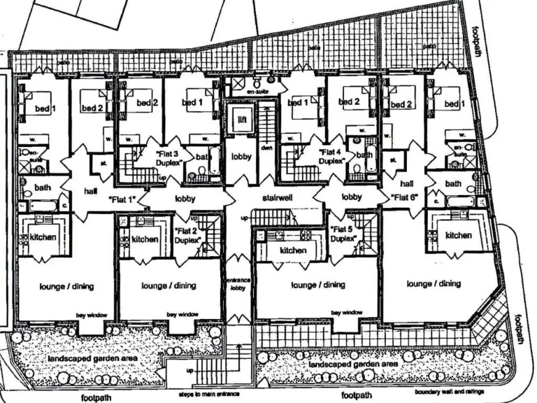
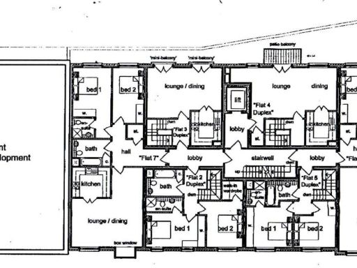
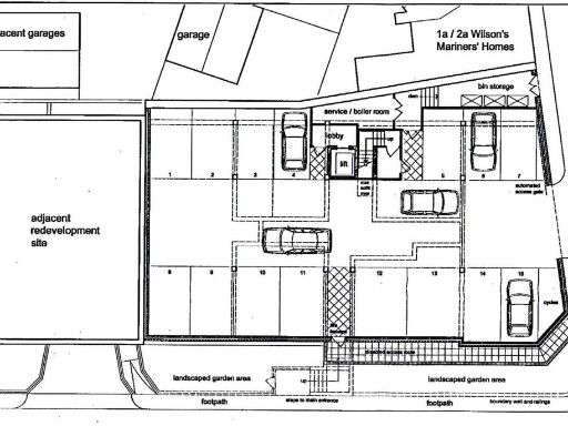
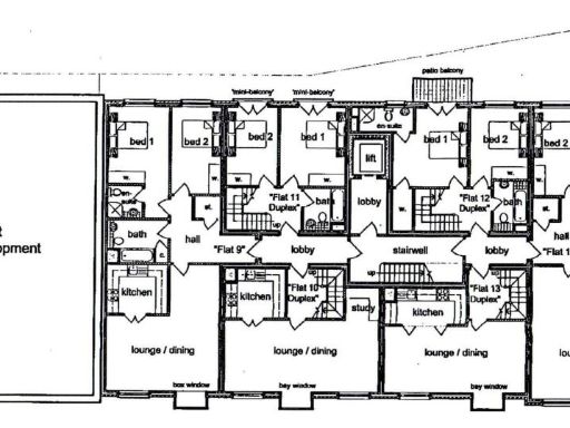
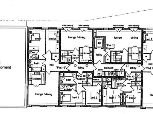
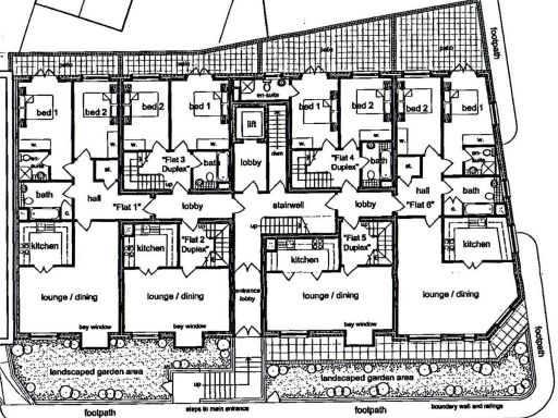
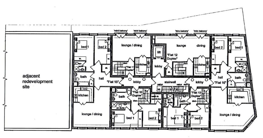
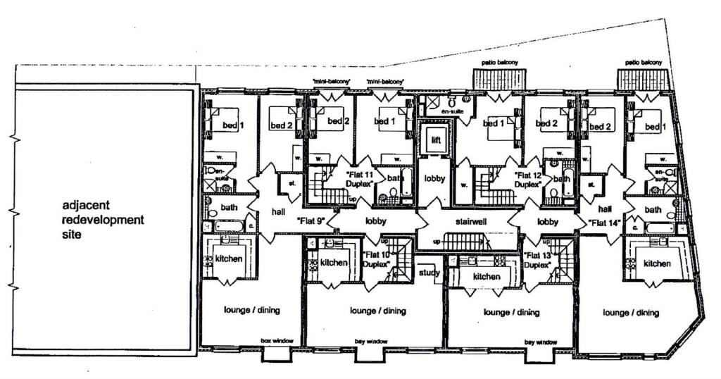
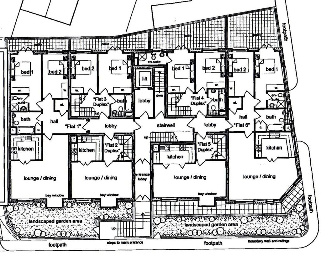
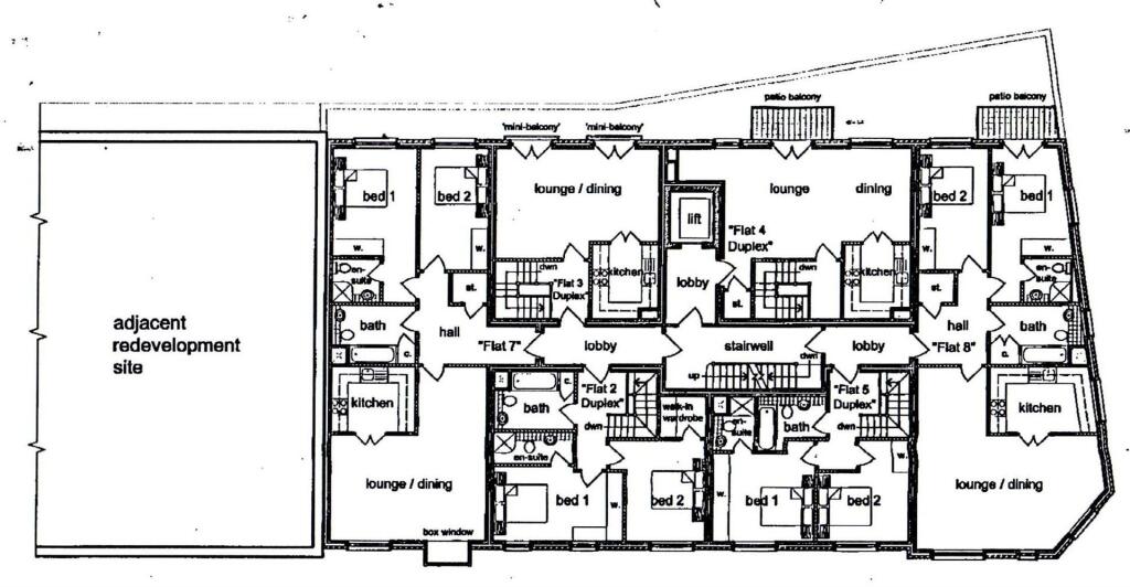
- Planning permission (now expired) for 16 self-contained flats with lower ground floor parking
- Approximately 14,400 sq ft across three floors, currently configured as warehouse space
- Industrial-style architecture with high ceilings and large windows
- Prime location close to Scarborough Old Town and town centre amenities
- Freehold tenure
**Concise Summary:**
Discover the potential of this expansive detached building located on Marlborough Street, ideally situated near Scarborough Old Town and the main town centre. Spanning approximately 14,400 sq ft across three stories, this industrial-style property features high ceilings and large windows, making it an attractive site for redevelopment or conversion. Although the previous planning permission for sixteen self-contained flats has expired, the substantial space allows for renovation opportunities and future redevelopment—perfect for investors or developers exploring the local housing market.
Currently arranged as warehouse space, the interior offers ample room for various configurations or commercial uses—a blank canvas awaiting your vision. With nearby amenities such as shops, restaurants, and cultural venues, this property is strategically positioned to appeal to a dynamic clientele. However, prospective buyers should note that renovations will be required, and consultations with Scarborough Borough Council planning department are advised prior to purchase. Don’t miss out on this unique opportunity to invest in a property that can transform into a profitable venture!
Commercial property for sale in The Warehouse, Marlborough Street, Scarborough, Yorkshire, YO12 7HG, YO12 — £250,000 • 1 bed • 1 bath • 4800 ft²
5 bedroom property for sale in Alga Terrace, Scarborough, YO11 — £300,000 • 5 bed • 1 bath • 6636 ft²
Residential development for sale in 135-141 Victoria Road, Scarborough, YO11 — £700,000 • 1 bed • 1 bath • 23684 ft²
High street retail property for sale in Harcourt Place, Scarborough, YO11 — £169,950 • 1 bed • 1 bath • 2336 ft²
Shop for sale in Queen Street, Scarborough, YO11 — £350,000 • 4 bed • 6 bath • 3663 ft²
Shop for sale in York Place, Scarborough, YO11 — £360,000 • 7 bed • 3 bath • 1414 ft²






























