Modern family home with EV charging and allocated parking.
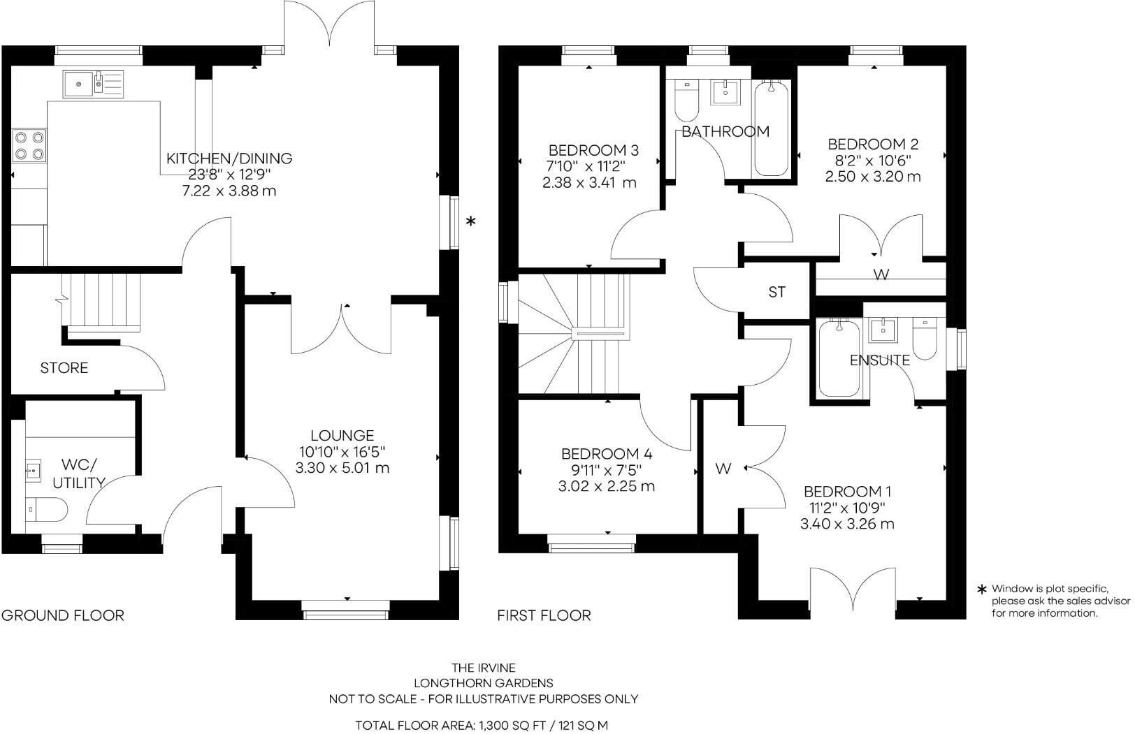
Four bedrooms in a detached new-build, about 1,300 sq ft
This four-bedroom detached new build at Longthorn Gardens offers contemporary family living across roughly 1,300 sq ft. The kitchen includes integrated appliances, a 4-zone induction hob, and modern sanitary ware; principal bedroom benefits from fitted wardrobes. Practical extras include in-curtilage and allocated parking, an EV charger, and thermostatic heating controls.
The development blends town-and-country appeal with good digital connectivity — excellent mobile signal and fast broadband — and convenient local amenities. A limited-time cashback incentive (up to £25,000) is available on selected plots for reservations before the end of November 2025, subject to entry dates and terms.
Notable drawbacks are factual: the immediate local area is classified as very deprived in public data, which may affect local services and resale perceptions. The property offers two bathrooms for four bedrooms, so families may need to consider bathroom sharing. As a new build, fixtures are modern but the site will still be maturing and landscaping may be in progress.
Overall this home will suit buyers seeking contemporary, low-maintenance living with strong connectivity and EV provision. Investors or buyers should consider the local deprivation indicator and the conditional nature of the cashback incentive when assessing long-term value.
4 bedroom detached house for sale in Millerhill,
Dalkeith,
EH22 1RZ, EH22 — £430,000 • 4 bed • 2 bath • 1367 ft²
4 bedroom detached house for sale in Millerhill,
Dalkeith,
EH22 1RZ, EH22 — £432,500 • 4 bed • 2 bath • 1367 ft²
4 bedroom detached house for sale in Millerhill,
Dalkeith,
EH22 1RZ, EH22 — £357,500 • 4 bed • 2 bath • 1029 ft²
4 bedroom town house for sale in Millerhill,
Dalkeith,
EH22 1RZ, EH22 — £370,000 • 4 bed • 2 bath • 1250 ft²
4 bedroom detached house for sale in Millerhill,
Dalkeith,
EH22 1RZ, EH22 — £389,000 • 4 bed • 2 bath • 1145 ft²
4 bedroom detached house for sale in Millerhill,
Dalkeith,
EH22 1RZ, EH22 — £355,000 • 4 bed • 2 bath • 1029 ft²


























