Move-in ready two-bedroom maisonette with allocated parking and communal green..
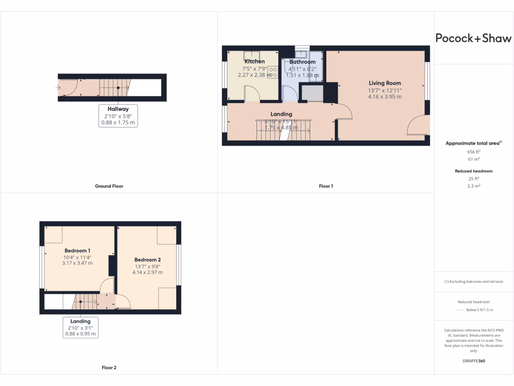
End-terrace two-bedroom maisonette over two floors
This end-terrace two-bedroom maisonette sits in a tucked-away spot on Sleaford Street, with pleasant views over a large communal green. The layout is split over two floors: a bright sitting/dining room with a small balcony and a fitted kitchen on the first floor, and two double bedrooms on the top floor. Recent updates include a newly fitted shower room and a new gas boiler, so the property is move-in ready.
Practical conveniences are a strength: allocated off-street parking, bike racks, good broadband and excellent mobile signal, plus a share of the freehold with no ground rent. The accommodation is a comfortable size for city living (around 635 sq ft) and will suit buyers seeking a central Cambridge base with outdoor space without needing a private garden.
Buyers should note the material facts: the lease has 88 years remaining and the annual service charge is approx. £1,714. The neighbourhood records higher-than-average crime levels, which some purchasers will weigh against the property's central location and communal green. Warm-air heating is installed alongside the gas boiler — buyers preferring conventional radiators should check suitability.
Overall this maisonette will appeal to first-time buyers, professionals and investors wanting a well-located, recently refreshed two-bedroom home near Mill Road and the city centre. It offers low immediate maintenance needs and sensible communal amenities, with potential for future value from its central Cambridge location.
2 bedroom flat for sale in Sleaford Street, Cambridge, CB1 — £325,000 • 2 bed • 1 bath • 685 ft²
1 bedroom flat for sale in Sleaford Street, Cambridge, CB1 — £250,000 • 1 bed • 1 bath • 377 ft²
2 bedroom maisonette for sale in East Road, Cambridge, CB1 — £350,000 • 2 bed • 1 bath • 667 ft²
2 bedroom maisonette for sale in Howes Place, Cambridge, CB3 — £325,000 • 2 bed • 1 bath • 603 ft²
2 bedroom maisonette for sale in Elfleda Road, Cambridge, CB5 — £325,000 • 2 bed • 1 bath • 581 ft²
2 bedroom maisonette for sale in Rayson Way, Cambridge, CB5 — £270,000 • 2 bed • 1 bath • 768 ft²






































































































