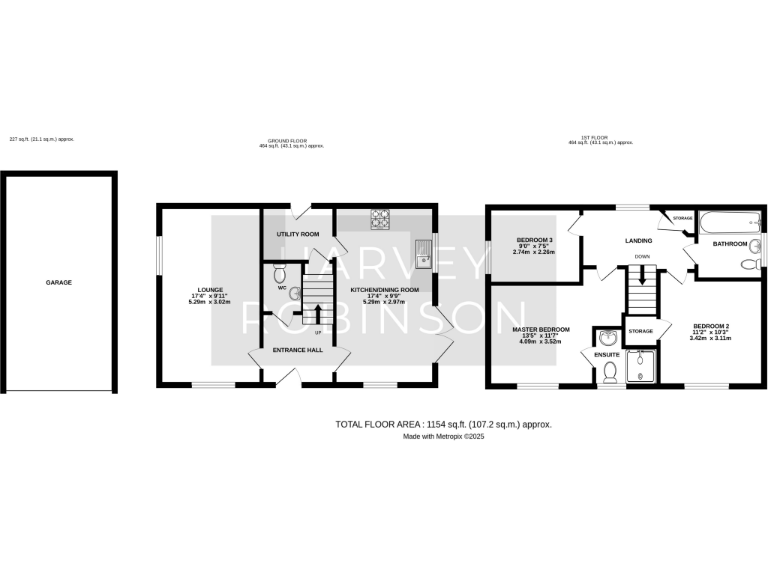
Well-sized 2023 home near nature reserves and good schools, ready to move into.
Three double-level bedrooms including master en-suite
Immaculate condition, built 2023, still under NHBC warranty
Approx 1,150 sq ft — well-proportioned family layout
South-east facing enclosed garden; plot is small
Single garage plus driveway parking for two cars
Utility room and cloakroom add practical value
Third bedroom currently used as a dressing room
Council tax band moderate; buyers should verify services
A bright, modern three-bedroom detached house completed in 2023 and offered in immaculate condition. The ground floor balances a full-length living room with a contemporary kitchen-diner and generous utility, creating practical family circulation and daily living space. The master bedroom benefits from an en-suite and there is built-in storage on the landing.
Externally the house sits on a small, low-maintenance south-east facing plot with an enclosed rear garden, single garage and driveway parking. At about 1,150 sq ft the accommodation is well-proportioned for a young family or professionals who value low upkeep and good local connections.
Location is a genuine strength: Godmanchester’s riverside character, nearby nature reserves and well-regarded schools offer family-friendly amenities. Commuters will appreciate easy access to Huntingdon station and major road links for Cambridge and London. The home is still covered by NHBC warranty.
Notable limitations are straightforward: the plot is small so outdoor space is modest, and council tax is moderate. The third bedroom is currently used as a dressing room, which may suit some buyers but reduces dedicated bedroom flexibility. Buyers should verify fixtures, fittings and services independently.
5 bedroom detached house for sale in Baumgartner, Godmanchester, PE29 — £625,000 • 5 bed • 3 bath • 1636 ft²
3 bedroom semi-detached house for sale in Gumcester Way, Godmanchester, PE29 — £350,000 • 3 bed • 2 bath • 1041 ft²
3 bedroom semi-detached house for sale in Hendrey Place, Godmanchester, PE29 — £349,995 • 3 bed • 2 bath • 900 ft²
3 bedroom detached house for sale in Roberts Close, Godmanchester, Huntingdon, PE29 — £375,000 • 3 bed • 2 bath • 1002 ft²
5 bedroom detached house for sale in Roberts Close, Godmanchester, PE29 — £600,000 • 5 bed • 3 bath • 1945 ft²
4 bedroom detached house for sale in Doherty Road, Godmanchester, PE29 — £500,000 • 4 bed • 2 bath • 1494 ft²










































































