Spacious four-bedroom seaside house with garage and ample parking.
Direct uninterrupted sea views from the front sunroom and main bedroom
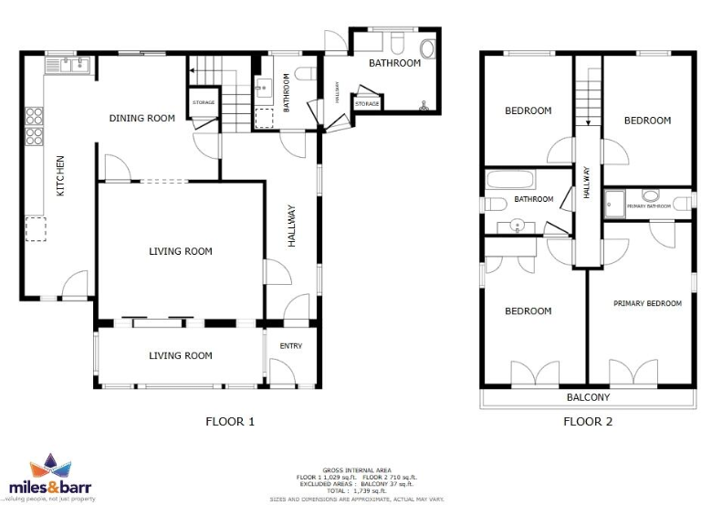
Set directly on Western Esplanade, this four-bedroom detached home delivers genuine coastal living with direct sea views from the front and a bright sunroom to enjoy them. The house offers spacious family accommodation across roughly 1,800 sq ft, including a generous lounge, an L-shaped kitchen/diner, separate utility and three bathrooms (including en-suite). Off-street parking for multiple vehicles plus a detached garage add practical everyday convenience.
The established south-facing rear garden is a calm, sheltered space framed by mature planting and fruit trees — ideal for children and outdoor entertaining. The property sits on a large plot with scope for extension or a front balcony and third-floor conversion (subject to consents) if you want to enhance the views and living area.
Practical points to note: the home dates from the 1930s–40s and has cavity walls with no installed cavity insulation (assumed), so buyers should budget for possible thermal upgrades. Council tax is above average and local recorded crime rates are higher than nearby areas, facts worth considering for prospective purchasers. There is no flood risk.
Offered freehold and chain free, the property suits families seeking a spacious seaside home with parking and garden, or buyers wanting a coastal executive house with renovation potential. Fast broadband, local schools with Good Ofsted ratings, and easy access to Herne Bay town centre and transport links add everyday appeal.
4 bedroom semi-detached house for sale in Western Esplanade, Herne Bay, Kent, CT6 — £600,000 • 4 bed • 5 bath • 1894 ft²
5 bedroom link detached house for sale in St Georges Terrace, Herne Bay, Kent, CT6 — £899,995 • 5 bed • 2 bath • 2870 ft²
4 bedroom semi-detached house for sale in Western Esplanade, Herne Bay, CT6 — £650,000 • 4 bed • 5 bath • 2302 ft²
5 bedroom detached house for sale in The Broadway, Herne Bay, Kent, CT6 — £550,000 • 5 bed • 3 bath • 2361 ft²
4 bedroom semi-detached house for sale in Beacon Hill, Herne Bay, CT6 — £825,000 • 4 bed • 2 bath • 1873 ft²
5 bedroom detached house for sale in Western Esplanade, Herne Bay, CT6 — £895,000 • 5 bed • 1 bath • 2574 ft²






































































































































































