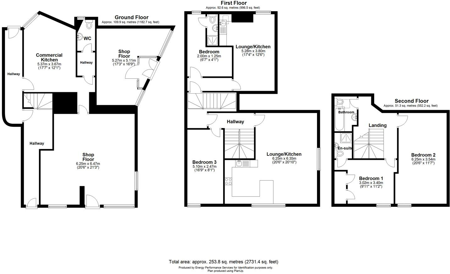
**Standout Features:**
- **Mixed-use property**: Successful delicatessen/café with two residential flats
- **Prime location**: Centrally located in Chulmleigh
- **Flexible investment opportunity**: Includes potential for expansion in the commercial space
- **Outdoor space**: Private rear courtyard garden
- **Character features**: Grade II listed building with original features
**Concise Summary:**
This exceptional mixed commercial and residential building, known as "The Old Dairy," presents a rare investment opportunity in the heart of Chulmleigh. Currently operating as a bustling delicatessen and café with seating for ten, the ground floor also includes a commercial kitchen and additional trading space ripe for expansion. Above, you'll find a spacious self-contained three-bedroom maisonette, perfect for owner accommodation, alongside a cozy one-bedroom flat—ideal for rental income.
While the property boasts charming original features, such as a traditional fireplace and panel doors, please note that its Grade II listed status may pose some challenges for renovations. The included courtyard garden provides a delightful outdoor space for relaxation. Located in a vibrant community with essential amenities, this property caters perfectly to investors looking to tap into the area's potential or families seeking a unique lifestyle blending work and residential living. With its ample space, historic charm, and prime location, don't miss the chance to make this versatile property your own!
3 bedroom terraced house for sale in Fore Street, Chulmleigh, EX18 — £140,000 • 3 bed • 2 bath • 1076 ft²
3 bedroom apartment for sale in High Street, Crediton, EX17 — £325,000 • 3 bed • 2 bath • 2278 ft²
3 bedroom house for sale in Chulmleigh, EX18 — £300,000 • 3 bed • 2 bath • 1255 ft²
2 bedroom house for sale in Chulmleigh, EX18 — £140,000 • 2 bed • 1 bath • 865 ft²
4 bedroom terraced house for sale in Chapel Street & Shop, Bideford, EX39 — £245,000 • 4 bed • 2 bath • 2164 ft²
Cafe for sale in High Street, Crediton, Devon, EX17 — £29,950 • 1 bed • 1 bath • 421 ft²






































































