Large period link house with garage, conservatory and scope to personalise close to beach.
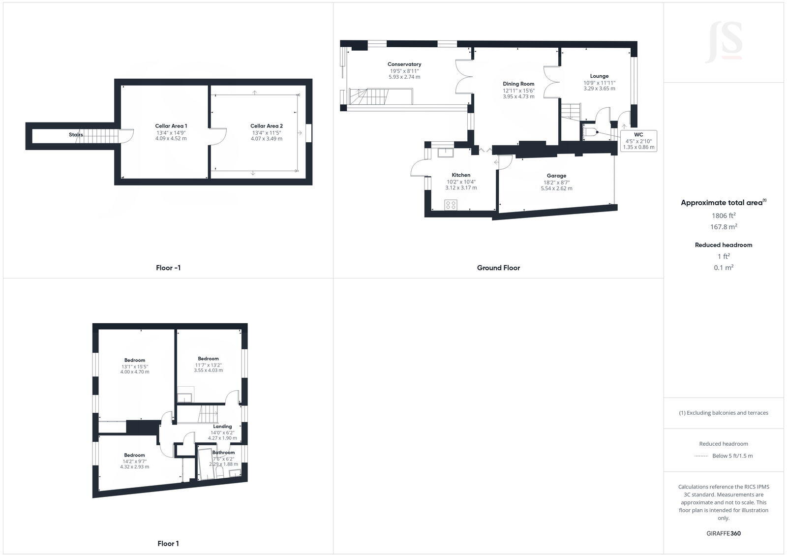
- Almost 1,806 sq ft of living space across three double bedrooms
- Chain-free sale; central Shoreham town centre location
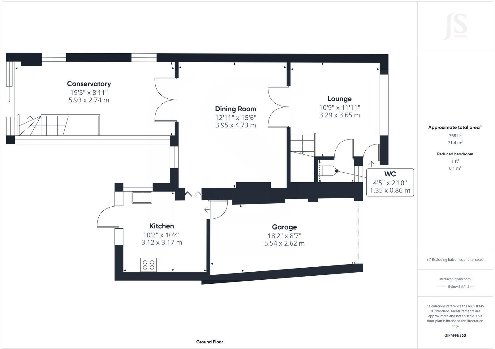
- Integral garage and large triple-aspect conservatory
- Usable cellar/basement providing extra storage or utility space
- West-facing enclosed rear garden with patio and distant church view
- Built before 1900 with solid brick walls (likely no cavity insulation)
- Double glazing installed before 2002; scope for modernisation
- Local area records very high crime levels — important buyer consideration
This substantial three-double-bedroom link-detached house sits in the heart of Shoreham town centre, moments from the High Street, footbridge to the beach and a wide range of local amenities. The home offers generous living space across almost 1,806 sq ft, an integral garage, large triple-aspect conservatory and a usable cellar — rare assets for a central location.
The property is offered chain-free and presents immediate scope for improvement, making it well suited to a family seeking central convenience or a buyer wanting to add value. Key practical features include mains gas heating with boiler and radiators, double glazing and a west-facing rear garden with distant church views from the patio.
Buyers should note material points honestly: the house was built before 1900 with solid brick walls presumed uninsulated, and the double glazing pre-dates 2002. The description notes “scope for improvement,” so some modernisation and upgrade works are likely to realise the property’s full potential. The area records a very high local crime level — an important consideration for prospective purchasers.
Overall, this is a characterful, large town-centre house with good transport, schooling and seaside access. With renovation and targeted improvements (insulation, kitchen/bathroom modernisation and cosmetic updating), it offers strong potential to become a comfortable family home or to be repositioned for rental/investment in a sought-after coastal town.
3 bedroom detached house for sale in Ham Road, Shoreham, West Sussex, BN43 — £400,000 • 3 bed • 1 bath • 947 ft²
3 bedroom terraced house for sale in Victoria Road, Shoreham-by-Sea, BN43 — £489,950 • 3 bed • 2 bath • 1186 ft²
3 bedroom terraced house for sale in Queens Place, Shoreham By Sea, BN43 — £600,000 • 3 bed • 1 bath • 1237 ft²
3 bedroom detached house for sale in Beach Road, Shoreham by Sea, BN43 — £850,000 • 3 bed • 1 bath • 1190 ft²
5 bedroom detached house for sale in St. Nicolas Lane, Shoreham By Sea, West Sussex, BN43 — £950,000 • 5 bed • 2 bath • 2347 ft²
3 bedroom terraced house for sale in Old Shoreham Road Shoreham, BN43 — £425,000 • 3 bed • 2 bath • 1290 ft²










































































