Immaculate four-bedroom village home with EV charging and flexible living spaces.
- Four bedrooms with master ensuite and built-in wardrobes
- Show-home standard interiors throughout, ready to move in
- Air conditioning in lounge and master bedroom for comfort
- Immaculate kitchen diner with integrated appliances and breakfast bar
- Landscaped garden with patio, decked seating and fenced boundaries
- Detached garage with electric points; EV charger and ample driveway parking
- Estate management charge approx. £200 p.a.; freehold tenure
- Council tax band noted as expensive; check local banding
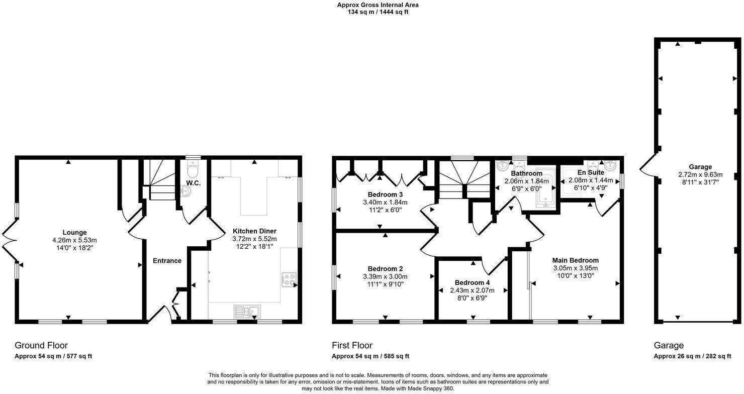
This four-bedroom detached home in Inkberrow blends show-home finishes with practical family features. The open-plan kitchen diner and bespoke media wall create generous communal spaces for everyday life and entertaining. Air conditioning in the lounge and master bedroom adds year-round comfort.
Upstairs offers four well-presented bedrooms, including a master with ensuite and built-in wardrobes. The layout suits family life and home-working; one bedroom currently configured as an office and another as a dressing room, offering flexible use. The property extends to about 1,444 sq ft on a decent plot with a landscaped garden arranged across multiple seating areas.
Outside, there is off-street parking for several vehicles, an EV charging point, and a detached garage with electric points — practical for families with multiple cars. The house is freehold, fitted with a Hive heating system, and sits in a very low-crime, affluent village with fast broadband and excellent mobile signal.
Notable costs and considerations: there is an estate management charge of approximately £200 per year and the local council tax band is described as expensive. While primary schools nearby include Outstanding-rated options, one listed local secondary has an Inadequate Ofsted rating, so families should check catchment options and school transport arrangements.
4 bedroom link detached house for sale in Orchard Mead, Inkberrow, Worcester, Worcestershire, WR7 — £475,000 • 4 bed • 2 bath
4 bedroom detached house for sale in Stonepit Lane, Inkberrow, Worcester, Worcestershire, WR7 — £650,000 • 4 bed • 2 bath • 1875 ft²
4 bedroom detached house for sale in Barley Meadows, Inkberrow, WR7 — £550,000 • 4 bed • 2 bath • 1808 ft²
4 bedroom detached house for sale in Greens Croft Way, Inkberrow, WR7 — £540,000 • 4 bed • 2 bath • 1916 ft²
4 bedroom link detached house for sale in Worcester Road, Inkberrow, Worcester, WR7 — £550,000 • 4 bed • 2 bath • 1370 ft²
4 bedroom detached house for sale in Inkberrow, Worcester, Worcestershire, WR7 — £995,000 • 4 bed • 1 bath • 4525 ft²


















































































































































































