Ideal first-home with parking and modern finish close to transport.
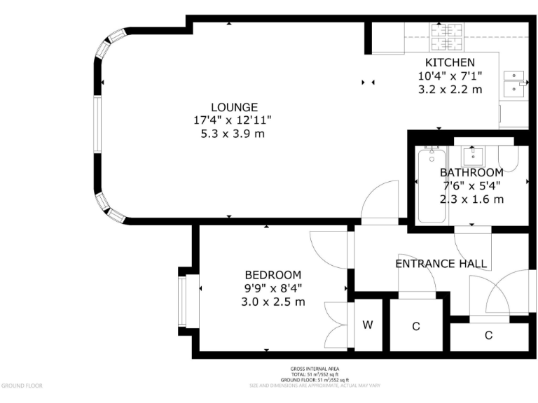
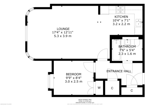
Large open-plan lounge and kitchen with bay-style window
Set within an attractive Art Deco conversion, this ground-floor one-bed apartment has been newly renovated and presented in modern neutral tones. The bright open-plan living/kitchen benefits from a large bay-style window, high ceilings and included appliances, making it move-in ready for a first home.
Practical comforts are in place: gas central heating, double glazing, EPC rating C and residents’ off-street parking. The building is factored with maintained communal gardens, an imposing secure-entry entrance and regular upkeep covered by the factor.
Buyers should note the property sits in a wider area classified as very deprived; local amenities and transport links are strong but the neighbourhood character is mixed. There is a factoring arrangement with an annual service charge of approximately £1,344. Tenure is currently unknown and should be checked by prospective purchasers.
Offered at a fixed price £15,000 below the home report valuation, the flat suits a buyer seeking a well-presented, low‑maintenance city base with easy access to shops, buses and green walking routes nearby.
1 bedroom ground floor flat for sale in 1/2 Albion Terrace, Edinburgh, EH7 5QX, EH7 — £150,000 • 1 bed • 1 bath • 435 ft²
1 bedroom flat for sale in 14/23 Arneil Drive, Edinburgh, EH5 2GS, EH5 — £165,000 • 1 bed • 1 bath • 546 ft²
2 bedroom ground floor flat for sale in 213 (flat 2), Granton Road, Granton, Edinburgh, EH5 1HD, EH5 — £210,000 • 2 bed • 2 bath • 733 ft²
2 bedroom flat for sale in 16/5 Cunningham Square, Portobello, Edinburgh, EH15 — £265,000 • 2 bed • 1 bath • 700 ft²
1 bedroom flat for sale in Arneil Drive, Edinburgh, EH5 — £168,000 • 1 bed • 1 bath • 536 ft²
2 bedroom flat for sale in 2/3 Arneil Place, Edinburgh, EH5 — £215,000 • 2 bed • 2 bath • 746 ft²






































































