Characterful stone cottage with valley views and scope to update.
No onward chain — ready for prompt sale or occupation
Lovely arched windows and period stone character throughout
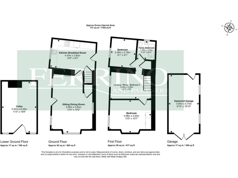
Two bedrooms with potential to create a third bedroom
Large cellar plus detached garage/workshop and parking
Terraced garden with elevated Wye Valley and river views
Borehole water and private sewage treatment — no water bills; maintenance required
LPG boiler and radiators; building likely lacks wall insulation
Historic 1850 construction; refurbishment may be needed to improve energy efficiency
Lower Lodge is a charming mid-19th-century stone lodge set on the upper Wye Valley with attractive arched windows and period character throughout. The bright sitting room and original architectural details give immediate cottage appeal, while terraced gardens and elevated valley views deliver the countryside setting buyers seek. Available with no onward chain, the house sits close to the Forest of Dean and is five miles from Ross-on-Wye and 8.5 miles from Monmouth.
The property offers practical space: a kitchen-diner, two bedrooms with clear potential to convert to three, a substantial cellar and a detached garage/workshop with parking. Modern conveniences include fast broadband, LPG-fired boiler central heating and private services — a borehole water supply and an on-site sewage treatment plant — which eliminate water bills but require ongoing maintenance.
Buyers should note this is a historic stone building constructed around 1850 with traditional masonry likely without modern wall insulation. Expect fabric upgrades and possible refurbishment to improve energy performance and thermal comfort. Council tax is above average for the area. Overall, Lower Lodge will suit someone seeking a characterful country home with scope to improve and personalise rather than a move-in-perfect suburban property.
3 bedroom terraced house for sale in Church Road, Lydbrook GL17 FOR SALE, GL17 — £275,000 • 3 bed • 3 bath • 1274 ft²
2 bedroom detached house for sale in Lydbrook, Gloucestershire, GL17 9PP, GL17 — £240,000 • 2 bed • 1 bath • 687 ft²
4 bedroom cottage for sale in Lower Lydbrook, GL17 — £425,000 • 4 bed • 2 bath • 1204 ft²
2 bedroom semi-detached house for sale in Stowfield, Lydbrook, GL17 — £325,000 • 2 bed • 2 bath • 937 ft²
2 bedroom detached house for sale in Rock Cottage, Lower Lydbrook, Lydbrook, GL17 — £425,000 • 2 bed • 1 bath • 988 ft²
2 bedroom cottage for sale in Central Lydbrook, Lydbrook, GL17 9PP, GL17 — £189,950 • 2 bed • 1 bath • 485 ft²










































































































































