Turnkey central flat with private south-facing patio and long lease.
Large 1-bed apartment with open-plan reception and kitchen
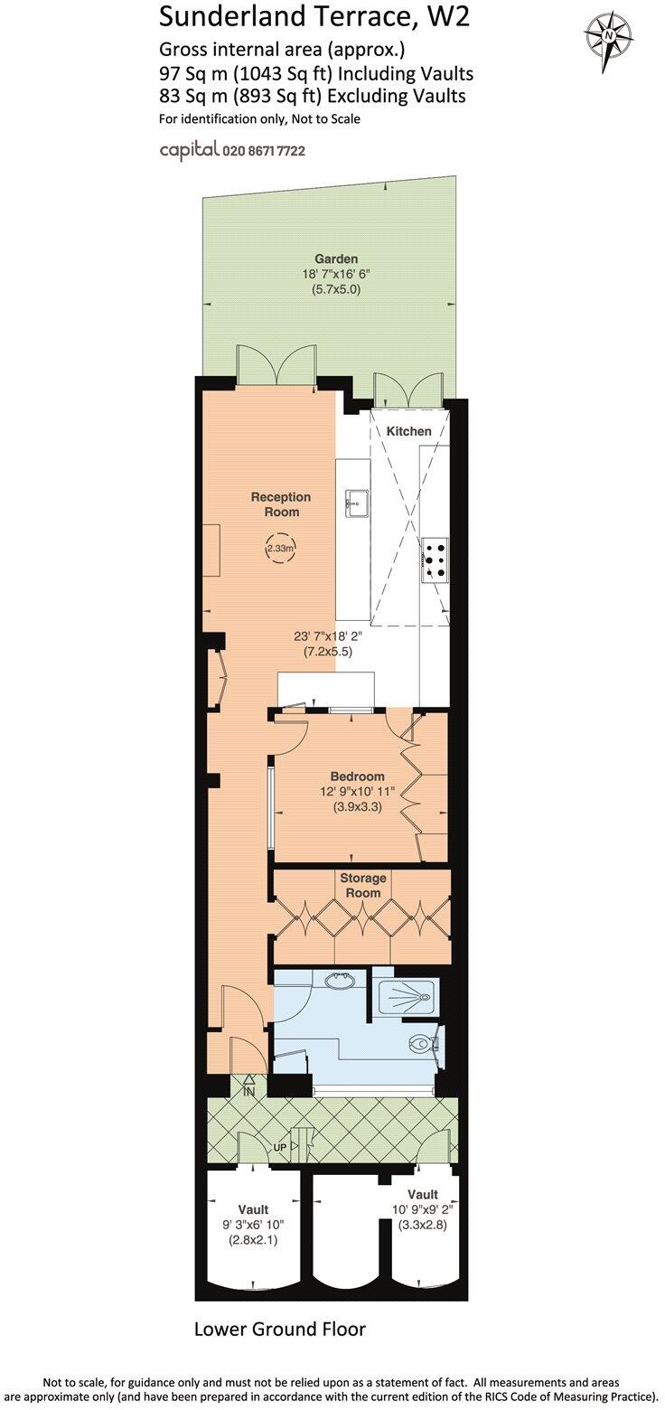
A bright one-bedroom apartment arranged within a Victorian terrace on a tree-lined Bayswater street. The principal room is an open-plan reception and kitchen finished to a high standard, with stone worktops, integrated appliances and roof-level glazing that delivers strong natural light. The flat includes a generous double bedroom, walk-in wardrobe, a well-appointed bathroom, and direct access to a private south-facing patio garden.
Practical ownership is straightforward: Share of Freehold with an exceptionally long lease (c.995 years), no ground rent and an EPC rating of C. Fast broadband and excellent mobile signal support home working; council tax is described as affordable. Two separate storage vaults on different leases add flexible space for bikes or luggage.
Notable costs and issues are clear: the annual service charge is £2,777 and the property is in a high-crime area, which may affect insurance and security measures. The building dates from before 1900 and has solid brick walls with assumed no insulation; buyers should consider potential thermal upgrades. Double glazing is present but install date is unknown.
Well suited to a first-time buyer or city-based professional seeking a turnkey central London home with outside space, or an investor seeking a lettable, low-maintenance flat. Viewings will suit those prioritising location, light and character over large internal floorplates.
1 bedroom apartment for sale in Hereford Road, Bayswater, W2 — £625,000 • 1 bed • 1 bath • 583 ft²
2 bedroom flat for sale in Westbourne Terrace, London, W2 — £1,300,000 • 2 bed • 2 bath • 908 ft²
1 bedroom flat for sale in 12 Queens Gardens, Bayswater, London, W2 — £800,000 • 1 bed • 1 bath • 657 ft²
1 bedroom terraced house for sale in Orsett Terrace, London, W2 — £495,000 • 1 bed • 1 bath • 439 ft²
1 bedroom apartment for sale in Monmouth Road, London, W2 — £595,000 • 1 bed • 1 bath • 422 ft²
1 bedroom apartment for sale in Hereford Road, Bayswater, W2 — £685,000 • 1 bed • 1 bath • 538 ft²


































