**Standout Features:**
- Full planning permission for mixed-use property (granted February 2016)
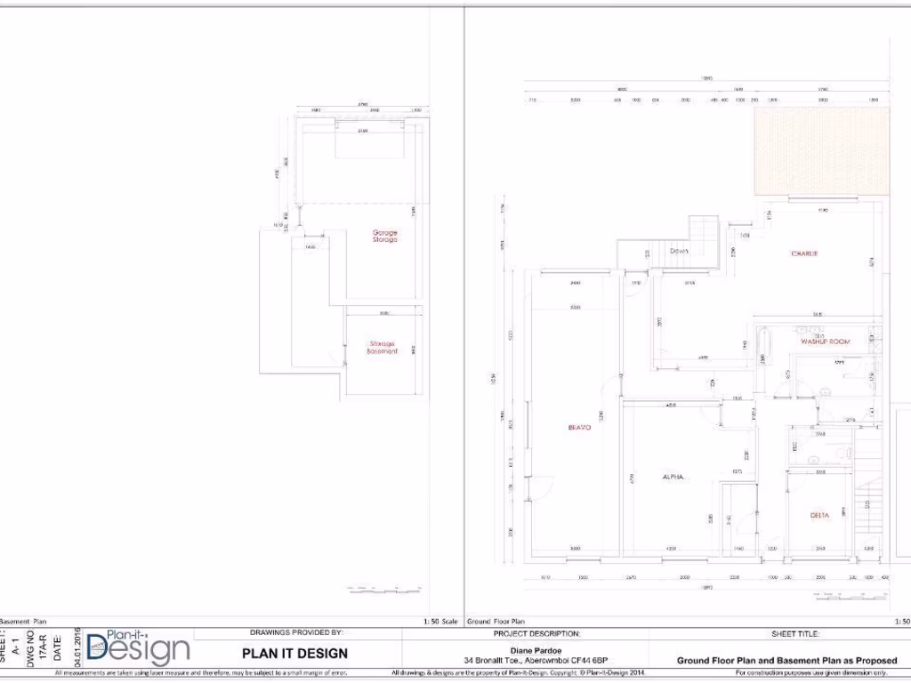
- Ground floor designated for commercial offices; first floor residential two-bedroom apartment
- Stunning lake views and ample onsite parking
- Spacious garage/storage space and a private entrance to the apartment
- Located in Abercwmboi, a short drive from Mountain Ash and Aberdare
**Potential Downsides:**
- Area has above average crime rates and is classified as deprived
- Property is described as needing renovation and maintenance
- Broadband speeds are slow
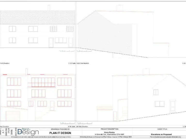
Discover a unique investment opportunity at Bronallt Terrace in Abercwmboi, where modern lifestyle meets commercial potential. This versatile property features full planning permission for commercial space on the ground floor, ideal for a variety of businesses, and a spacious two-bedroom apartment above with serene lake views. The first-floor residence boasts a bright living room with sliding doors to a veranda, a sunny kitchen/dining area, and flexible spaces including an office and gym.
While the property offers a wealth of potential, it will require some renovations and the area has higher crime rates, making it essential for buyers to carefully assess their plans. With ample off-street parking, a large backyard ripe for landscaping, and the ability to combine work and home life, this property stands out as an excellent choice for investors or owner-occupiers seeking flexibility and lifestyle. Don't miss the chance to explore this rare offering; viewings are recommended to fully appreciate its potential.
Commercial property for sale in Bronallt Terrace, Abercwmboi, Aberdare, RCT, CF44 6BP, CF44 — £169,950 • 1 bed • 1 bath
Land for sale in The Beeches, Abercynon, Mountain Ash, CF45 — £79,995 • 5 bed • 4 bath
Land for sale in The New House, Abercynon Road, Abercynon, Mountain Ash, CF45 — £345,000 • 4 bed • 3 bath
Commercial property for sale in Whitcombe Street, Aberdare, CF44 7AU, CF44 — £225,000 • 3 bed • 2 bath
2 bedroom detached house for sale in Sion Terrace, Aberdare, CF44 0AS, CF44 — £160,000 • 2 bed • 2 bath
3 bedroom terraced house for sale in Margaret Street, Abercynon, Mountain Ash, CF45 — £199,950 • 3 bed • 2 bath • 2644 ft²


























