**Standout Features:**
- **Location:** City Centre, North Hill, Colchester
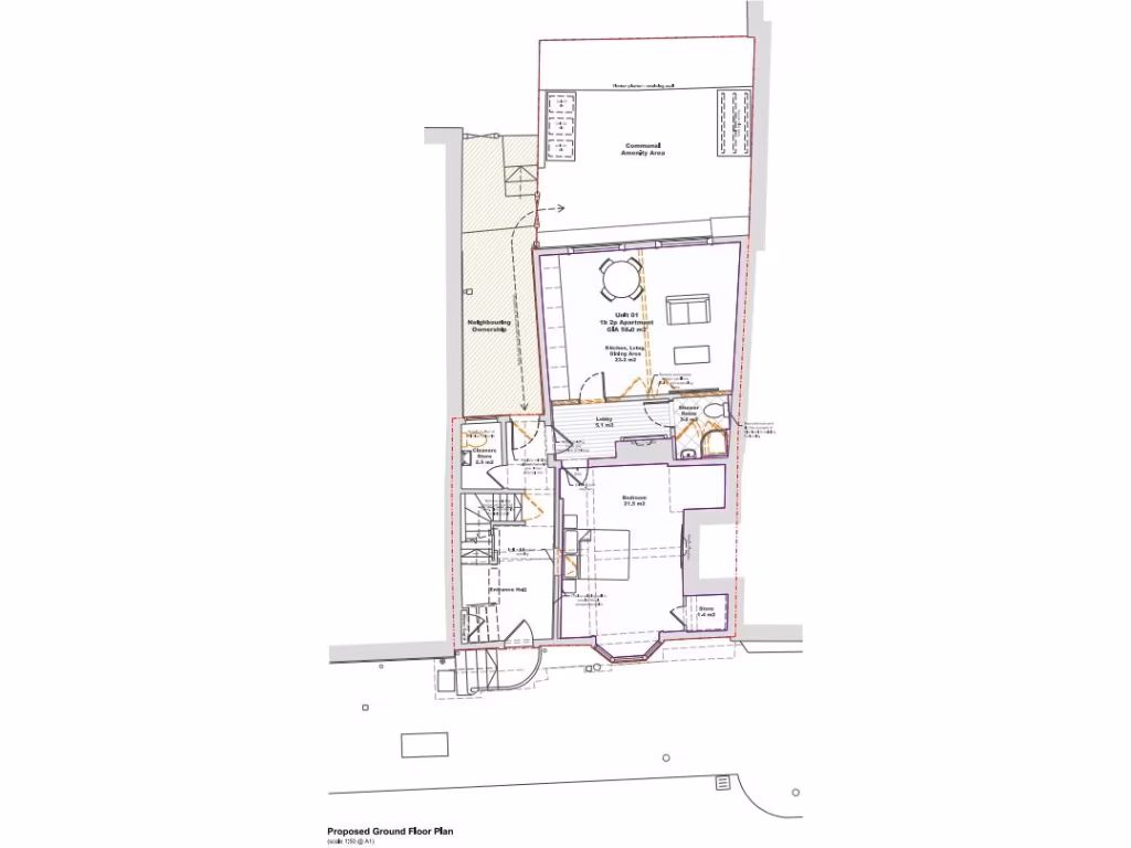
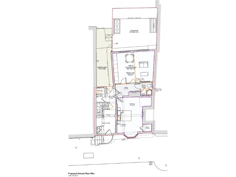
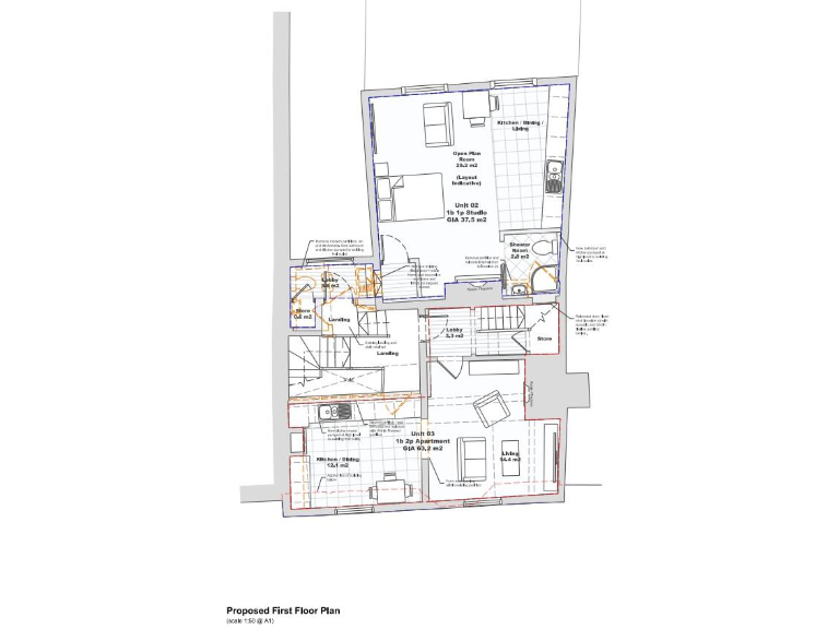
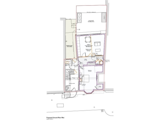
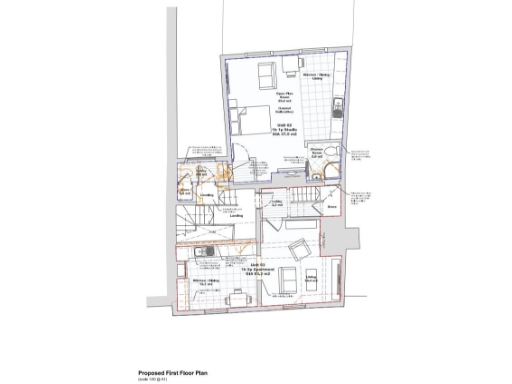
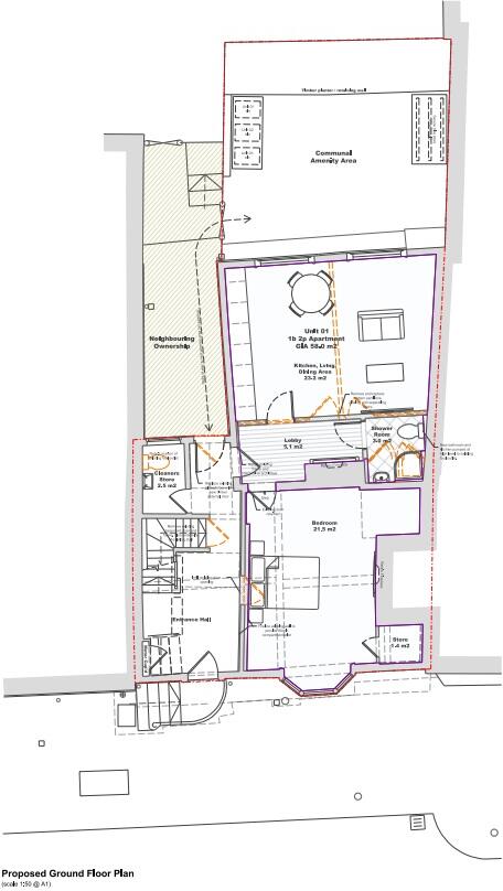
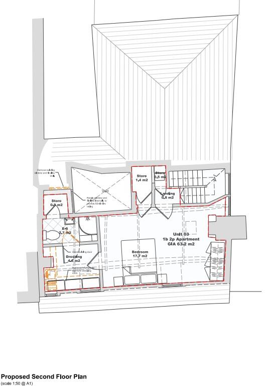
- **Planning Permission:** Granted to convert into three apartments
- **Size:** 1,084 sq ft, Freehold property
- **Unique Aspects:** Grade II listed Georgian building with period features
- **Outdoor Space:** Courtyard garden
- **Investment Potential:** Ideal for developers or investors looking to tap into the residential market
This historic Georgian property in the heart of Colchester offers a unique investment opportunity with planning permission already granted to convert it into three individual apartments—a studio, a one-bedroom apartment, and a duplex. Spanning 1,084 sq ft, this large freehold house combines period elegance with modern development potential, making it particularly appealing for investors or developers ready to capitalize on a vibrant urban landscape.
The building retains charming original features, including sash windows and a traditional layout, which can enhance its future rental or sale value. While it requires some restoration work, the central location close to local amenities, shopping, and transport links promises a good return on investment for the meticulous buyer. However, the property has listed status, which may complicate renovation efforts.
With direct links to London and a rich cultural heritage, North Hill is highly sought after—and with council tax currently at a low rate, the property is an enticing prospect for both personal use or rental income. Don't miss this chance to own a piece of history while shaping its future.
4 bedroom town house for sale in West Stockwell Street, Colchester, CO1 — £600,000 • 4 bed • 3 bath • 2073 ft²
Office for sale in 54 Head Street, Colchester, Essex, CO1 — £575,000 • 1 bed • 1 bath • 3500 ft²
7 bedroom detached house for sale in West Stockwell Street, Colchester, Essex, CO1 — £1,175,000 • 7 bed • 4 bath • 4940 ft²
11 bedroom detached house for sale in Magdalen Street, Colchester, CO1 — £400,000 • 11 bed • 3 bath
Hotel for sale in 51 North Hill, CO1 — £1,195,000 • 1 bed • 1 bath
1 bedroom apartment for sale in North Hill, Colchester, CO1 — £130,000 • 1 bed • 1 bath • 2207 ft²






















