Bright three-bedroom flat with garage and parking, ideal for first-time buyers.
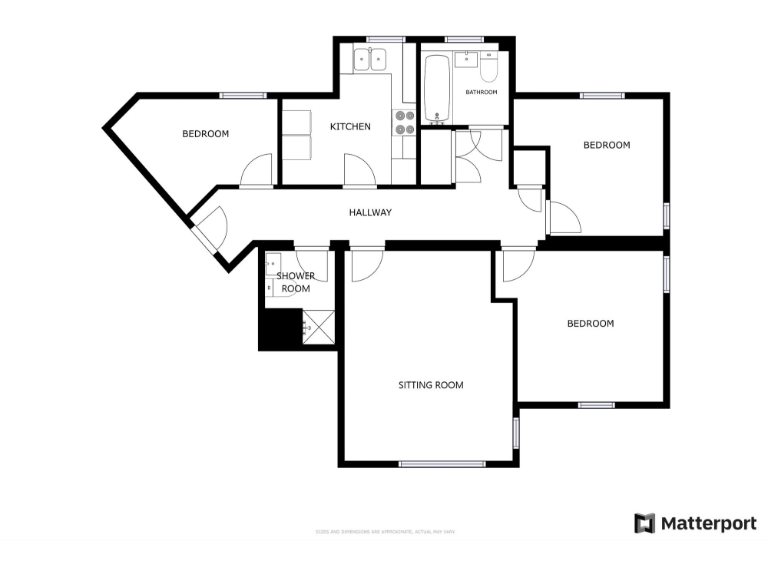
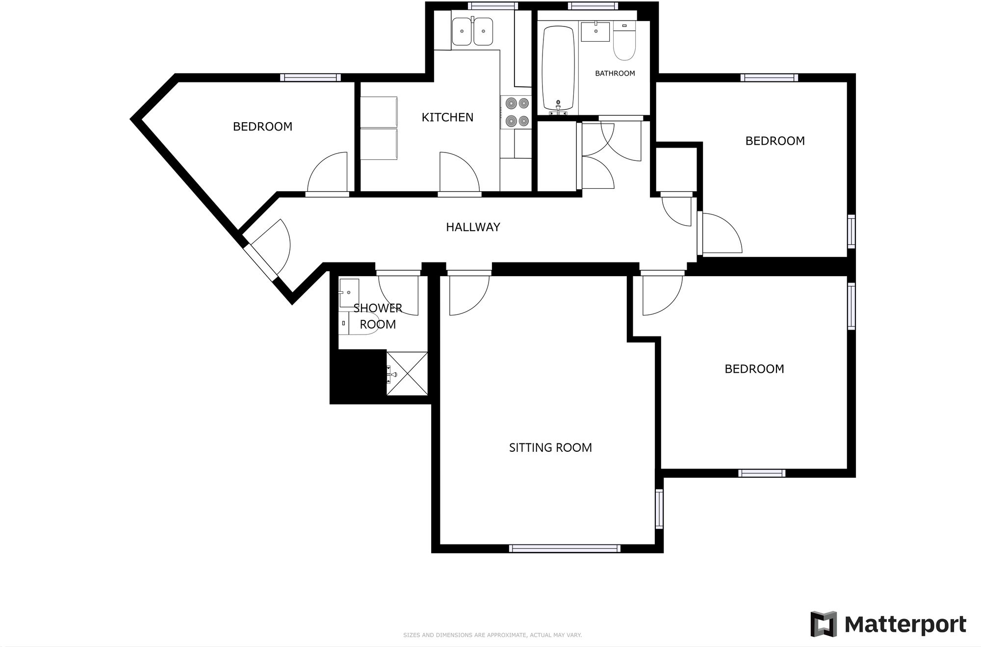
Ground-floor three-bedroom flat with two bathrooms
Situated on Tay Road in New Lubbesthorpe, this ground-floor three-bedroom flat offers a bright, practical layout suited to first-time buyers or small families. The sitting room benefits from large double-glazed windows and a sensible flow from communal entrance to private hallway. Two bathrooms — a family bathroom plus a separate shower room — add useful flexibility for busy mornings.
Practical features include gas central heating, double glazing throughout, allocated parking and a detached garage, plus communal gardens for outdoor space. The modern brick façade and well-kept common areas reflect the newer New Lubbesthorpe development, and an EPC B rating points to reasonable energy performance.
Important to note: the property is leasehold (991 years remaining) and a service charge of around £1,000 is recorded (details unknown). Local crime levels are reported as very high; prospective buyers should check community safety data and consider this when visiting. Council tax is described as inexpensive, and transport links to Leicester, Fosse Park and major roads are convenient for commuters.
This flat suits buyers seeking a low-maintenance, modern home with good room sizes and parking/garage provision. Internal viewing is recommended to assess condition and the local area before committing, especially given the service charge and local safety considerations.
2 bedroom flat for sale in Dionard Drive, Lubbesthorpe, Leicester, Leicestershire, LE19 — £215,000 • 2 bed • 1 bath • 625 ft²
2 bedroom flat for sale in Tay Road, Lubbesthorpe, LE19 — £220,000 • 2 bed • 2 bath • 607 ft²
2 bedroom flat for sale in Shipman Road, Leicester, LE3 — £145,000 • 2 bed • 1 bath • 582 ft²
2 bedroom flat for sale in London Road, LEICESTER, Leicestershire, LE2 — £210,000 • 2 bed • 1 bath • 953 ft²
2 bedroom apartment for sale in Tay Road, Leicester, LE19 — £215,000 • 2 bed • 2 bath • 743 ft²
1 bedroom flat for sale in Queens Drive, Enderby, Leicester, LE19 — £110,000 • 1 bed • 1 bath • 528 ft²


















































