Single-level living in a tidy village setting, ideal for first-time buyers.
Quiet private cul-de-sac location with low local crime
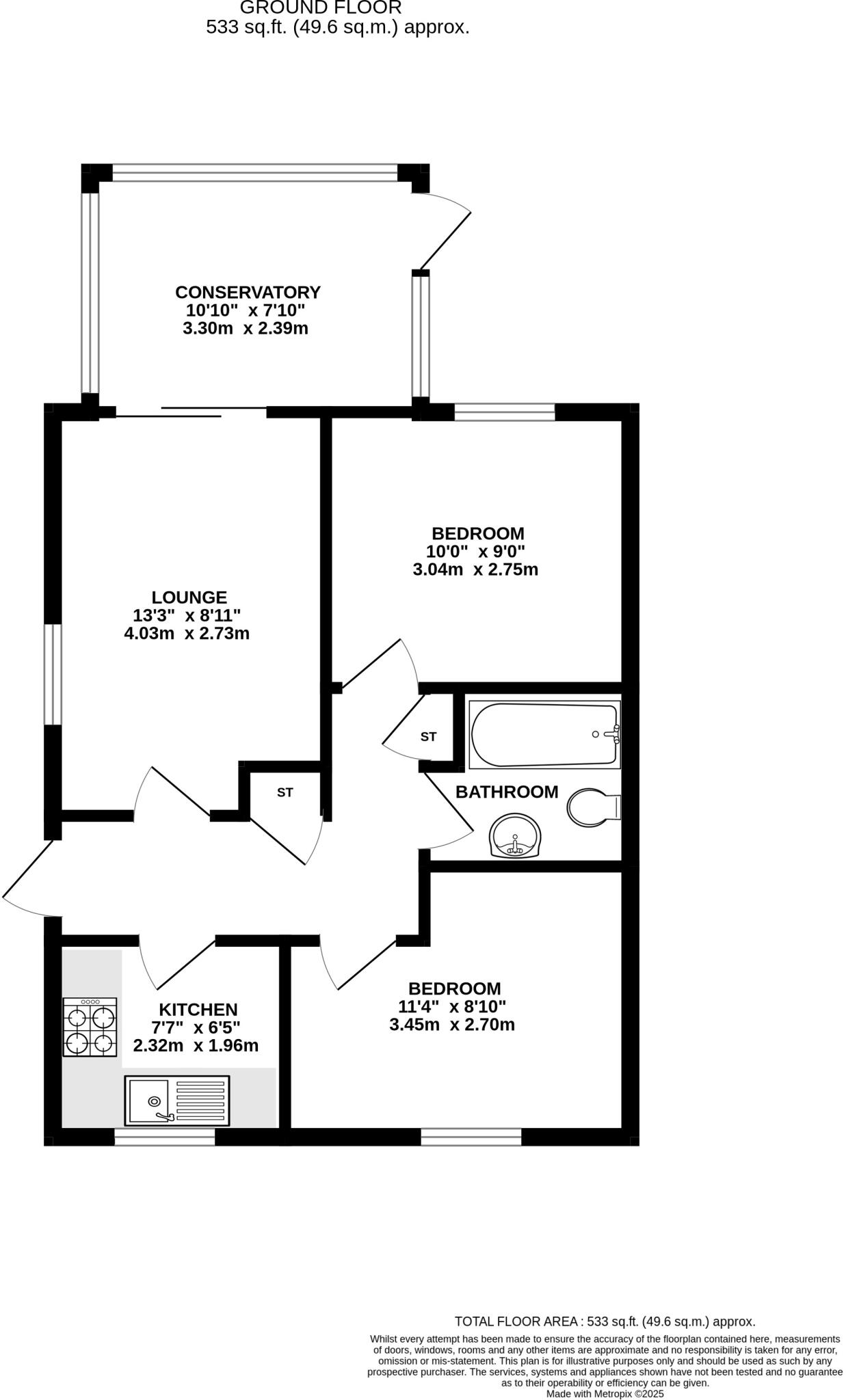
A compact, single-storey bungalow in a quiet cul-de-sac, presented with neutral, modern finishes and ready for immediate occupation. The layout suits straightforward single-level living: lounge, fitted kitchen, conservatory, two bedrooms and a family bathroom. Primary schools and local amenities sit within easy reach, with Belper, Ripley and Ilkeston accessible for wider shopping and commuting.
Practical features include mains gas central heating, double glazing (installed before 2002), off-street parking on a private driveway and a low-maintenance rear garden with paved patio, lawn and shed. The property’s modest footprint and simple layout make it an obvious choice for first-time buyers, downsizers or buy-to-let investors seeking a low-upkeep home in a stable, comfortable neighbourhood.
Buyers should note the bungalow is small in overall size and the rear garden is compact to average rather than expansive. Tenure details are not provided and should be confirmed early in the purchase process. The property was constructed around 1996–2002 and, while well presented, offers scope for modest updating or personalisation to add value.
Overall this is a practical, low-maintenance home in a quiet village setting with good local schools and transport links. It will particularly appeal to those prioritising single-level living and a manageable outdoor space, or investors seeking a straightforward rental option.
2 bedroom bungalow for sale in Larch Road, Kilburn, Belper, Derbyshire, DE56 — £235,000 • 2 bed • 2 bath • 632 ft²
2 bedroom detached bungalow for sale in Ruffstone Close, Holbrook, Belper, DE56 — £325,000 • 2 bed • 1 bath • 561 ft²
2 bedroom detached bungalow for sale in Rossendale, Ilkeston Derbyshire, DE7 — £220,000 • 2 bed • 1 bath • 668 ft²
2 bedroom bungalow for sale in Windsor Close, Heanor, Derbyshire, DE75 — £195,000 • 2 bed • 1 bath • 606 ft²
2 bedroom bungalow for sale in Upper Barn Close, Heanor, Derbyshire, DE75 — £235,000 • 2 bed • 1 bath • 937 ft²
2 bedroom semi-detached bungalow for sale in St Michaels Close, Crich, Matlock, DE4 — £270,000 • 2 bed • 1 bath • 595 ft²






























































































