1.5-acre Lakeland estate with planning permission for holiday, guest house or family use.
1. 1.5-acre estate with mature gardens and woodland
2. Planning permission for three uses: home, holiday let, guest house
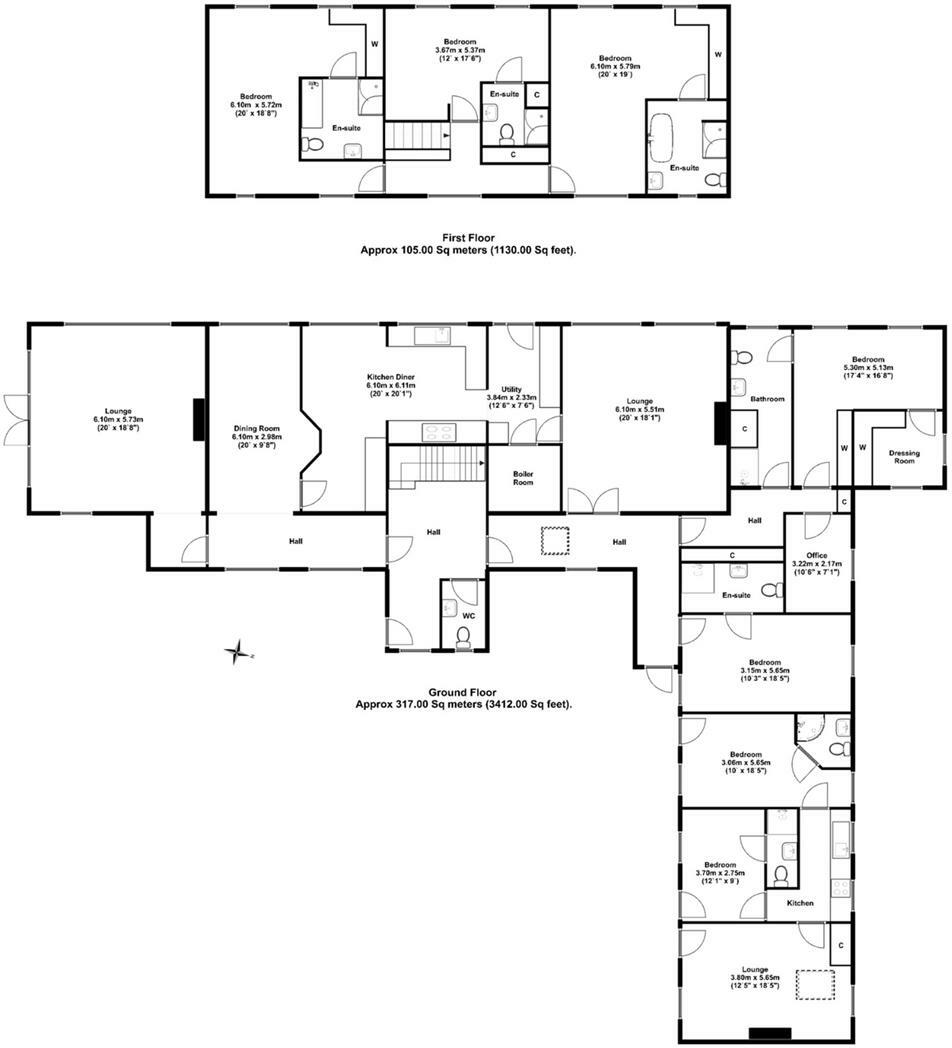
3. Seven bedrooms and seven bathrooms across 4,542 sq ft
4. Five-bay oak-frame garage plus ample additional parking
5. South-facing patio with views to the High Street range
6. LPG central heating and septic tank—no mains gas or drainage
7. Medium flood risk; property built 1967–1975, may need updating
8. Slow broadband and average mobile signal—consider connectivity upgrades
Knotts Mill Country Lodge is a substantial 1.5-acre estate in Watermillock with planning permission for three distinct uses: a single Lakeland family home, a luxury holiday let, or a guest house with owners’ accommodation and attached holiday cottage. The property totals approximately 4,542 sq ft across two levels, currently arranged as multiple letting suites plus a private owner flat and a two-bedroom attached holiday unit. Large windows and south-facing patios capture light and views towards the High Street range above Ullswater.
For investors or hospitality operators, the site is already set up for short-stay accommodation: seven bedrooms, seven bathrooms, generous communal spaces and ample off-street parking including a five-bay oak-framed garage. Mature gardens and wooded grounds provide privacy and a strong guest experience in the Lake District National Park, while easy road links to Penrith and local attractions support year-round letting potential.
Buyers should note several practical considerations. The property uses LPG-fired central heating and a septic tank; mains drainage is not provided. Broadband speeds are slow and mobile signal is average, which may affect long-stay guest expectations or remote-working guests. There is a medium flood risk in the area and the house dates from the late 1960s–1970s, so some systems and finishes will benefit from updating. EPC is D and the property is business-rated for council tax purposes.
Overall, this estate suits someone seeking a turn-key hospitality operation or a spacious country residence with strong conversion and revenue potential. The granted planning options reduce risk for a purchaser wanting to continue or expand a holiday business, while the plot scale and outbuildings offer scope to adapt the estate for other uses with careful investment.
7 bedroom guest house for sale in Watermillock, Penrith, CA11 — £1,295,000 • 7 bed • 7 bath • 4542 ft²
6 bedroom link detached house for sale in Bank House Barn, Matterdale End, Penrith, Cumbria, CA11 — £895,000 • 6 bed • 3 bath • 453 ft²
7 bedroom guest house for sale in Bassenthwaite Lake, Cockermouth, CA13 — £895,000 • 7 bed • 9 bath
7 bedroom house for sale in Bassenthwaite Lake, Cockermouth, CA13 — £895,000 • 7 bed • 9 bath
3 bedroom maisonette for sale in Five Wreay Mansion, Watermillock, Penrith, Cumbria, CA11 — £500,000 • 3 bed • 2 bath • 953 ft²
13 bedroom detached house for sale in The Old Farmhouse Mews, Braithwaite, Keswick, Cumbria, CA12 5SY, CA12 — £1,200,000 • 13 bed • 12 bath • 6895 ft²


















































































































