**Standout Features:**
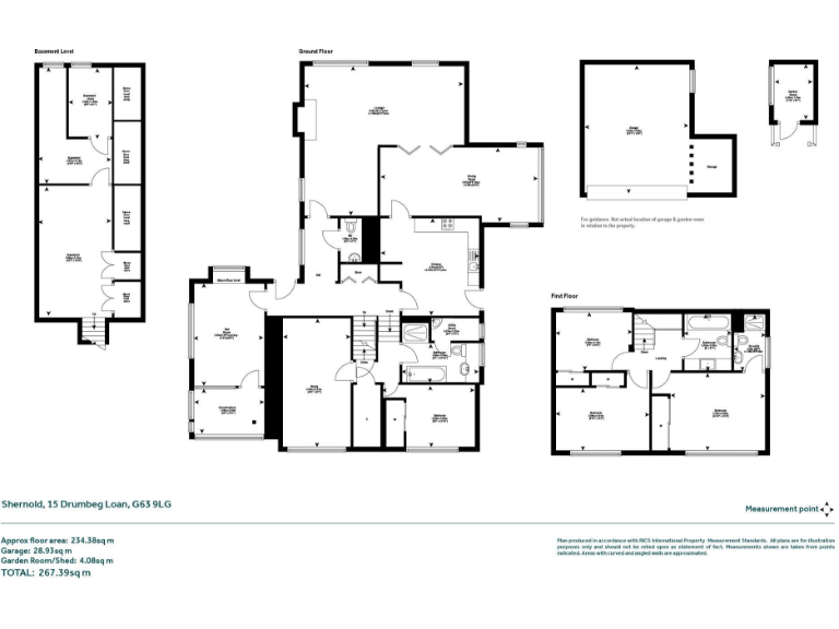
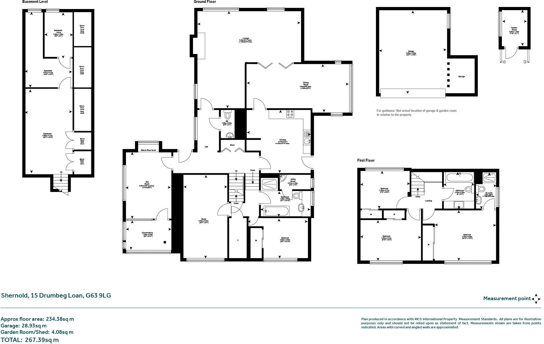
- Spacious detached home with versatile layout (2500 sqft)
- 4 bedrooms, 3 bathrooms, and large living spaces
- Set in a picturesque Killearn location with dramatic views
- Generous garden with established greenery
- Large driveway and detached double garage with remote access
- Freehold tenure
**Potential Concerns:**
- Requires significant renovation and aesthetic updating
- Higher council tax band (Band G) in a deprived area
Nestled in the charming village of Killearn, this unique 1968-detached bungalow offers over 2,500 square feet of living space in a sought-after rural setting. Boasting four bedrooms and adaptable living arrangements, the property's expansive layout allows for versatile use—ideal for families or investors looking to create a bespoke residence. The large gardens provide a serene outdoor escape with breathtaking views of the Dumgoyne and Campsie Fells, perfect for relaxing or entertaining.
While Shernold shows promise, it is in need of renovation, making this an exciting project for buyers ready to transform a spacious canvas into their dream home. The current owners have maintained key structural elements, including a roof replacement in 2010 and double-glazed windows over the last decade, setting a solid foundation for future enhancements. With an established community, excellent local amenities, and easy access to Glasgow, this property affords both comfort and investment potential. Don’t miss out on this rare opportunity—embrace the tranquility of rural living with the chance to personalize it to your tastes!
3 bedroom detached house for sale in Lampson Road, Killearn, G63 — £375,000 • 3 bed • 2 bath • 1795 ft²
5 bedroom detached house for sale in White Heather Cottage, Gartocharn, Alexandria, G83 8ND, G83 — £345,000 • 5 bed • 2 bath • 2154 ft²
3 bedroom detached house for sale in Shepherds Cottage, Branziert Road North, Killearn, Glasgow, G63 — £420,000 • 3 bed • 3 bath • 1539 ft²
6 bedroom detached villa for sale in Baikal, The Square, Killearn, G63 9NG, G63 — £595,000 • 6 bed • 4 bath • 2906 ft²
3 bedroom bungalow for sale in 129 Kenningknowes Road, Stirling, FK7 — £315,000 • 3 bed • 1 bath • 850 ft²
3 bedroom detached house for sale in Campsie Drive, Milngavie, G62 — £400,000 • 3 bed • 2 bath • 1775 ft²










































































































































































































