Large plot, adaptable layout and excellent local schools for family living.
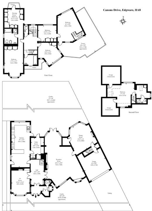
Lake view from south-facing front garden and three roof terraces|Parking for six cars plus double garage|Five bedrooms, three reception rooms, utility room|Potential to create separate annexe or self-contained apartment|Built 1900–1929 with period features; high ceilings present|Solid brick walls; assumed no insulation — upgrade likely needed|Double glazing present, installation date unknown; heating: mains gas boiler|Will be sold at auction; council tax band H (very expensive)
This substantial five-bedroom Edwardian/Tudor Revival detached house sits on a large plot on Canons Drive, offering wide lake views from a south-facing front garden and three roof terraces. The property delivers generous family living with three large reception rooms, a utility room, double garage and parking for up to six cars. Its size and layout create clear potential for a separate annexe or self-contained apartment to suit multigenerational living.
Built circa 1900–1929, the home retains period character—timber-framed gables, large windows and high ceilings—while also showing areas that will need updating. The walls are solid brick with assumed no insulation, double glazing is present but the install date is unknown, and the heating is mains gas via boiler and radiators. These features mean purchasers should budget for thermal upgrades and potential modernisation works.
Practical considerations: the property will be sold at auction and carries a very expensive council tax band (H). Flooding risk is low and the area is very affluent with good local schools including the highly regarded North London Collegiate School nearby. Broadband and mobile signal are strong, and local amenities and transport links are close to hand.
For a family seeking a character-filled house with scope to adapt or extend, this home offers exceptional outdoor space, flexible living arrangements and strong curb appeal. Buyers should factor in renovation and energy-efficiency improvements alongside auction purchase requirements.
6 bedroom detached house for sale in Canons Drive, Edgware, HA8 — £1,500,000 • 6 bed • 3 bath • 3631 ft²
5 bedroom detached house for sale in Canons Drive, Edgware, HA8 — £2,995,000 • 5 bed • 4 bath • 3886 ft²
5 bedroom house for sale in Canons Drive, Edgware, HA8 — £1,475,000 • 5 bed • 3 bath • 2522 ft²
3 bedroom detached house for sale in Cavendish Drive, Edgware, Greater London, HA8 — £999,950 • 3 bed • 3 bath • 1844 ft²
6 bedroom detached house for sale in Canons Drive, Edgware, HA8 — £2,195,000 • 6 bed • 3 bath • 4126 ft²
5 bedroom detached house for sale in Canons Drive, Edgware, HA8 — £1,350,000 • 5 bed • 2 bath • 2689 ft²






















































































