Compact, low-maintenance single-storey home with flexible outbuildings and ample parking.
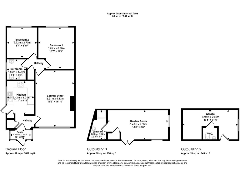
Two-bedroom single-storey layout, approx 603 sqft
Freehold with gas central heating and double glazing
Modern fitted kitchen; boiler replaced five years ago
Updated wiring completed seven years ago
Garden room with shower; useful garage with WC
Driveway parking for 3–4 cars and enclosed rear garden
Small property footprint; limited expansion potential
Area classed very deprived with higher local crime rates
Well-presented two-bedroom semi-detached bungalow offering single-storey living and useful outbuildings in Towyn. Updated kitchen, recent boiler (5 years) and rewiring (7 years) reduce immediate maintenance needs, while full double glazing and smart meters help running costs. The garage (with WC) and a sizable garden room (with shower) extend usable space for hobbies, home office or occasional guests.
The property is compact (approx 603 sqft) and suits buyers seeking low-step, manageable accommodation — ideal for downsizers or those wanting ground-floor living. The driveway provides parking for several cars and the enclosed rear garden is designed for low maintenance. Broadband is connected and mains services include gas central heating.
Buyers should note the local context: this area is classified as ‘very deprived’ with a higher-than-average crime level. The bungalow is in an ageing suburban area and its small overall size limits expansion potential. While the home is well-maintained, cosmetic updating in places may be desired to personalise the property.
This freehold, traditional-layout bungalow presents a practical, ready-to-move-in option with flexible ancillary spaces. Early viewing will best show how the garden room, garage and outdoor space add value for a variety of uses.
2 bedroom semi-detached bungalow for sale in Towyn Way West, Towyn, LL22 — £180,000 • 2 bed • 1 bath • 803 ft²
2 bedroom bungalow for sale in Bryn Road, Towyn, Conwy, LL22 — £220,000 • 2 bed • 1 bath • 913 ft²
3 bedroom bungalow for sale in Bryn Road, Towyn, Abergele, Conwy, LL22 — £200,000 • 3 bed • 1 bath • 832 ft²
1 bedroom semi-detached bungalow for sale in Llys Edward, Towyn, LL22 — £135,000 • 1 bed • 1 bath • 484 ft²
3 bedroom detached bungalow for sale in Gors Road, Towyn, Conwy, LL22 — £190,000 • 3 bed • 1 bath • 907 ft²
1 bedroom semi-detached bungalow for sale in Llys Madoc, Towyn, Conwy, LL22 9NN, LL22 — £139,950 • 1 bed • 1 bath • 485 ft²


















































