Commuter-friendly with garden room, driveway and extension potential.
Chain-free three-bedroom semi-detached freehold property
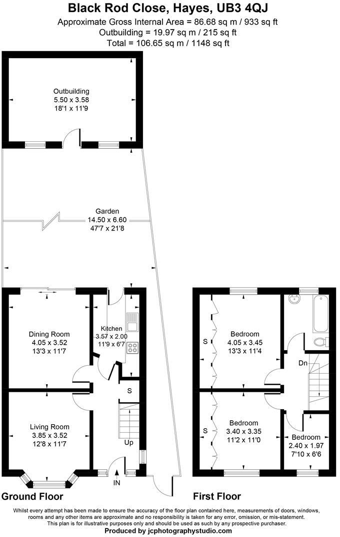
Set on a quiet cul-de-sac in Hayes, this chain-free three-bedroom semi offers practical family living with clear scope to add value. The house has two reception rooms, a bright kitchen and a detached garden room that works well as a home office or studio. A driveway provides off-street parking and the rear garden is low-maintenance and sizeable for the plot.
A 4-metre rear extension has planning approval dating back to 2003; the permission remains valid and requires only a renewal fee rather than new drawings. The property is Freehold and sits close to Hayes & Harlington station (Elizabeth Line access), making it attractive for commuting to Central London and Heathrow.
There are honest maintenance and improvement considerations: the property dates from the 1930s–1940s and has solid brick walls likely without cavity insulation, double glazing installed before 2002 and some roof/repair works visible externally. The house has one bathroom and a relatively small plot, so buyers seeking larger gardens or move-in-perfect finishes should expect refurbishment.
This home will suit families or investor-buyers looking for a well-located property with extension potential (STPP). The combination of chain-free availability, approved extension, and strong transport links creates practical scope for adding space and value.
3 bedroom semi-detached house for sale in Adelphi Crescent, Hayes, UB4 8ND, UB4 — £575,000 • 3 bed • 1 bath • 726 ft²
3 bedroom semi-detached house for sale in Black Rod Close, Hayes, UB3 — £540,000 • 3 bed • 2 bath • 1112 ft²
3 bedroom end of terrace house for sale in Glamis Crescent, Hayes, UB3 — £555,000 • 3 bed • 1 bath • 818 ft²
3 bedroom semi-detached house for sale in Cromwell Road, Hayes, UB3 2PU, UB3 — £520,000 • 3 bed • 1 bath • 787 ft²
3 bedroom semi-detached house for sale in Haig Road, Uxbridge, UB8 — £515,000 • 3 bed • 1 bath • 754 ft²
2 bedroom terraced house for sale in St. Dunstans Close, Hayes, UB3 — £400,000 • 2 bed • 1 bath • 785 ft²














































