Move‑in ready house close to Elizabeth Line and good schools.
- Extended 1930s semi detached with open plan living
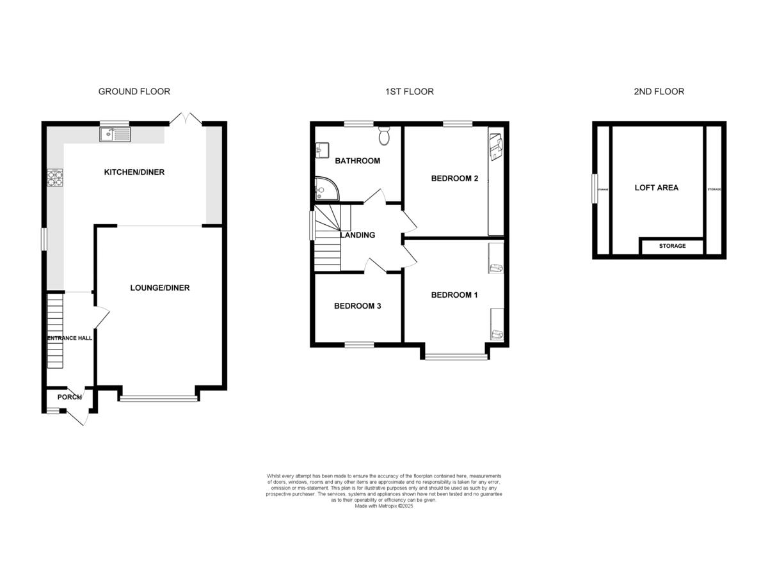
A well‑proportioned 1930s semi detached home, extended to provide bright, open family living in Marshalls Park. The ground floor flows from a generous lounge and dining area through to an extended kitchen/dining space with French doors onto a landscaped, low‑maintenance garden — ideal for weekend relaxing and child play. The former kitchen now serves as a practical utility room, keeping everyday clutter out of sight.
Upstairs are two double bedrooms with built‑in wardrobes, a third bedroom suitable as a nursery or home office, and a modern shower room. The loft is accessible by a folding ladder and has been used as a children’s gaming space, though it is not a full conversion. Off‑street parking at the front and side access to the garden add everyday convenience.
Located within easy walking distance of the Elizabeth Line station, good local schools and Romford amenities, this freehold property suits families seeking move‑in readiness with room to personalise. Broadband and mobile signals are strong and the area records very low crime and no flood risk. Guide price range shown reflects current market interest and the property’s desirable Marshalls Park setting.
Material considerations: the house is presented ready to live in but has a single shower room and loft access via a folding ladder rather than a converted landing — buyers wanting more bathroom capacity or a full loft conversion should factor potential alterations and costs into plans.
3 bedroom semi-detached house for sale in Marshalls Drive, Marshalls Park, Romford, RM1 — £500,000 • 3 bed • 1 bath
3 bedroom semi-detached house for sale in Seymer Road, Marshalls Park, RM1 4LB, RM1 — £525,000 • 3 bed • 1 bath • 991 ft²
4 bedroom semi-detached house for sale in Dorset Avenue, Marshalls Park, Romford, RM1 — £740,000 • 4 bed • 2 bath • 1357 ft²
4 bedroom semi-detached house for sale in Marshalls Drive, Romford, RM1 — £650,000 • 4 bed • 3 bath • 1446 ft²
4 bedroom semi-detached house for sale in Marshalls Drive, Marshalls Park, RM1 4JR, RM1 — £550,000 • 4 bed • 2 bath • 1303 ft²
4 bedroom semi-detached house for sale in Hill Grove, Romford, RM1 — £625,000 • 4 bed • 1 bath • 1299 ft²






































































































