Bright four-bedroom home with landscaped garden and EV charging, ideal for families.
Recently refurbished throughout with contemporary kitchen and bathroom finishes
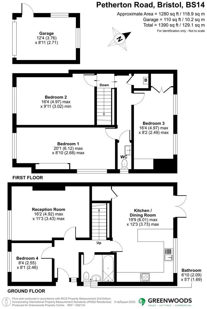
This recently refurbished four-bedroom semi-detached house offers a contemporary, family-focused layout ready to move into. Interiors are bright and clean, centred on an open-plan kitchen-diner with quartz worktops, an island breakfast bar and French doors onto a landscaped rear garden — ideal for family meals and weekend hosting. The versatile front room works well as a home office or a fourth bedroom.
Practical features include a generous driveway with space for multiple cars, an integral garage with garden access and an EV charging point. Three of the bedrooms are good doubles, and the largest bedroom stretches to approximately 20ft, providing flexible sleeping or storage arrangements for growing families. Local schools rated Good are within easy reach and the neighbourhood amenities support everyday family life.
Buyers should note the energy rating of D and that the double glazing install date is unknown; these may affect running costs compared with newer builds. Room sizes and the overall plot are typical for a suburban family home rather than expansive, and council tax is classed as moderate. Overall, the property’s recent refurbishment and practical parking and garden space make it a convenient family home with sensible potential for further efficiency upgrades if desired.
4 bedroom link detached house for sale in Gleneagles Drive, Bristol, BS10 — £550,000 • 4 bed • 1 bath • 875 ft²
4 bedroom detached house for sale in John Hall Close, Bristol, BS14 — £475,000 • 4 bed • 2 bath • 1211 ft²
3 bedroom semi-detached house for sale in Allerton Crescent, Whitchurch, Bristol, BS14 — £355,000 • 3 bed • 1 bath • 840 ft²
4 bedroom end of terrace house for sale in Appledore Close, Bristol, BS14 — £400,000 • 4 bed • 2 bath • 1572 ft²
4 bedroom detached house for sale in Cranwell Grove, Bristol, BS14 — £499,995 • 4 bed • 3 bath • 1076 ft²
3 bedroom semi-detached house for sale in Fortfield Road, Bristol, BS14 — £375,000 • 3 bed • 2 bath • 1044 ft²






















































































