**Standout Features:**
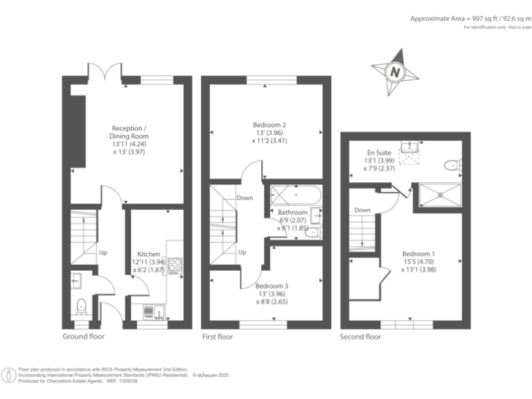
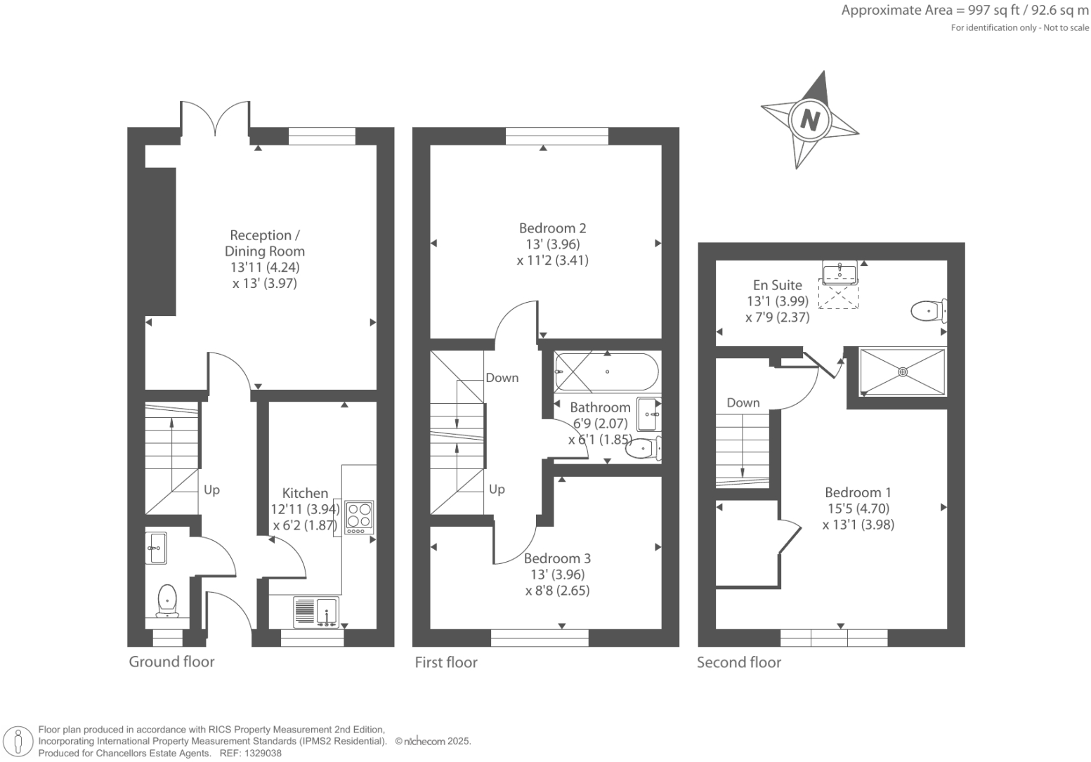
- Modern mid-terrace design, constructed between 1996-2002
- 3 bedrooms, including a master suite with en-suite bathroom
- Open plan living and dining room with French doors to a private garden
- Driveway parking for multiple vehicles
- Private, low-maintenance rear garden with astroturf and deck area
- Affordable council tax and low crime area
- Excellent mobile signal and fast broadband
This charming three-bedroom mid-terrace property located in the heart of Tenbury Wells offers a perfect blend of comfort and modern living. With an inviting open plan living and dining area that seamlessly connects to a private rear garden, this home is ideal for entertaining or enjoying quiet family time. The newly updated kitchen leads into the airy lounge with ample natural light, while a convenient downstairs W/C adds to the functionality of this family-friendly space.
The property features a spacious master suite with a built-in wardrobe and an en-suite bathroom, ensuring your privacy and comfort. Two additional double bedrooms share a well-appointed family bathroom on the first floor. Outside, the easy-care garden is perfect for children or pets, featuring astroturf and a raised deck for outdoor gatherings.
Situated in an affluent and tranquil area, this property is within reach of good local schools, amenities, and with a low crime rate, it offers a safe environment for families. This home presents a fantastic opportunity for first-time buyers or investors looking for rental potential in a desirable neighborhood. Don’t miss out—schedule a viewing today and picture yourself living in this wonderful home!
3 bedroom end of terrace house for sale in Tenbury Wells, Worcestershire, WR15 — £200,000 • 3 bed • 1 bath • 1103 ft²
4 bedroom semi-detached house for sale in Old Bowling Green Close, Burford, Tenbury Wells, WR15 — £279,950 • 4 bed • 1 bath • 888 ft²
3 bedroom detached house for sale in Temeside Close, Tenbury Wells, WR15 — £270,000 • 3 bed • 1 bath • 876 ft²
3 bedroom semi-detached house for sale in Bromyard Road, Tenbury Wells, WR15 — £250,000 • 3 bed • 1 bath • 833 ft²
4 bedroom detached house for sale in Blackthorn Road, Tenbury Wells, Worcestershire, WR15 — £425,000 • 4 bed • 2 bath • 1156 ft²
2 bedroom end of terrace house for sale in Wheeler Orchard, Tenbury Wells, Worcestershire, WR15 8DQ, WR15 — £180,000 • 2 bed • 1 bath • 868 ft²






















































































