Quiet low‑maintenance retirement living close to Truro city amenities.
• Purpose-built over-55s complex with on-site house manager
• Freehold terraced home with integral garage and communal parking
• Communal lounge, guest suite and laundry enhance independent living
• Compact, efficient layout with conservatory and low-maintenance patio
• Electric heating; double glazing throughout
• Modest internal footprint — suitable for downsizers, not large families
• Management charge approx £2,200 pa; ongoing cost to budget for
• Shower room only; no bath and limited garden space
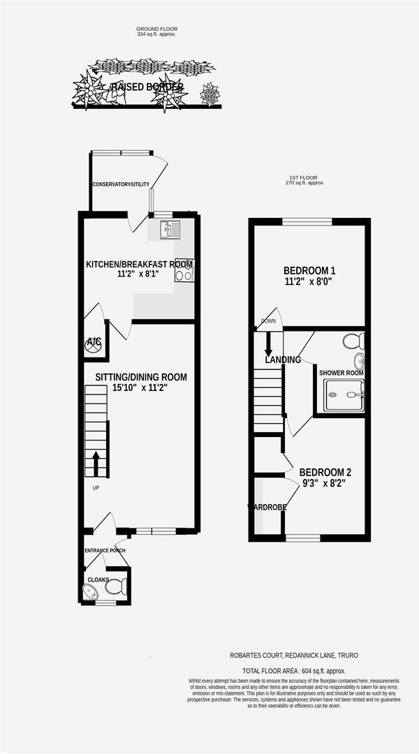
A tidy two-bedroom terraced home in a purpose-built over-55s complex, tucked into a quiet corner of Robartes Court. The freehold property offers practical, low-maintenance living with double glazing, a small conservatory and an integral garage. Communal amenities include a residents' lounge, laundry, guest suite and an on-site property manager which support independent living and social opportunities.
Internally the layout is compact and efficient: an entrance hall, cloakroom/WC, living room, kitchen/dining and a rear conservatory leading to a paved, low-maintenance patio. Upstairs are two bedrooms — one generous double and a smaller single with built-in storage — plus a shower room with an electric shower. Electric heating and double glazing keep the running costs straightforward, though the accommodation is modest in scale.
This home suits downsizers or retirees seeking convenience and community close to Truro city centre, shops and transport links. The property is freehold but has annual management charges (approx. £2,200) covering communal upkeep and services — an important ongoing cost to factor in. The compact garden and conservative room sizes mean this will suit buyers prioritising location, low maintenance and communal facilities over large private outdoor space.
Notable negatives are the service charge level, reliance on electric heating and the small overall footprint. There is scope for cosmetic updating if buyers want to personalise the interior, but no major structural issues are stated. For anyone wanting a manageable, well-located retirement home with built-in community support, this is a practical choice.
2 bedroom terraced house for sale in Redannick Lane, Truro, TR1 — £145,000 • 2 bed • 1 bath • 587 ft²
2 bedroom terraced house for sale in Redannick Lane, Truro, TR1 — £130,000 • 2 bed • 1 bath • 579 ft²
2 bedroom end of terrace house for sale in Penhaligon Court, Truro, Cornwall, TR1 — £200,000 • 2 bed • 1 bath • 739 ft²
2 bedroom terraced house for sale in Penhaligon Court, Truro, Cornwall, TR1 — £170,000 • 2 bed • 2 bath • 781 ft²
2 bedroom apartment for sale in Penhaligon Court, Truro, TR1 — £140,000 • 2 bed • 1 bath • 689 ft²
2 bedroom flat for sale in Penhaligon Court, Truro, TR1 — £130,000 • 2 bed • 1 bath • 592 ft²


















































































