Spacious adaptable property for families or multi-generational living.
Four-bedroom main house with dual-aspect sitting room and conservatory
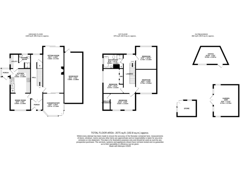
Polden Cottage Barn is a substantial, flexible village home arranged as a four-bedroom main house with a self-contained two-bedroom annexe and separate guest accommodation. The main house offers bright, dual-aspect reception rooms, a conservatory and a well-equipped kitchen/diner, while the converted barn annexe provides accessible open-plan living and a wet room — ideal for multi-generational households or rental income.
Outside, the plot is large and private with established hedging, a summer house with covered entertaining area, an office cabin and a powered workshop. Practical features include gated off-street parking for multiple vehicles, an EV charging point and 16 owned solar panels, which help reduce ongoing energy costs.
This property suits families, intergenerational living or buyers seeking additional income streams from the annexe and guest suite. Buyers should note the property attracts above-average council tax and sits in a quiet rural village, so everyday amenities are limited locally though Street and Bridgwater are within reasonable driving distance. Broadband is fast, but mobile signal is average.
Overall the house offers generous accommodation and useful outbuildings with clear potential for modern living and adaptable uses. Viewings are recommended to appreciate the scope and privacy of the plot and the separate annexe’s independence.
4 bedroom detached house for sale in Goose Lane, Chilton Polden, TA7 — £409,950 • 4 bed • 1 bath • 1708 ft²
6 bedroom barn conversion for sale in Withy Road, West Huntspill, Highbridge, TA9 — £850,000 • 6 bed • 4 bath • 2781 ft²
5 bedroom detached house for sale in Manor Road, Catcott, Bridgwater, Somerset, TA7 — £950,000 • 5 bed • 3 bath • 3792 ft²
4 bedroom detached house for sale in Unique, eco friendly, barn conversion on the outskirts of Wells, Somerset, BA4 — £1,600,000 • 4 bed • 4 bath • 4000 ft²
4 bedroom detached house for sale in Main Street, Walton, BA16 — £575,000 • 4 bed • 2 bath • 2213 ft²
6 bedroom detached house for sale in Pit Hill Lane, Moorlinch, TA7 — £650,000 • 6 bed • 3 bath • 1947 ft²


















































































































