Modern riverside apartment with balcony and communal gym for active city living.
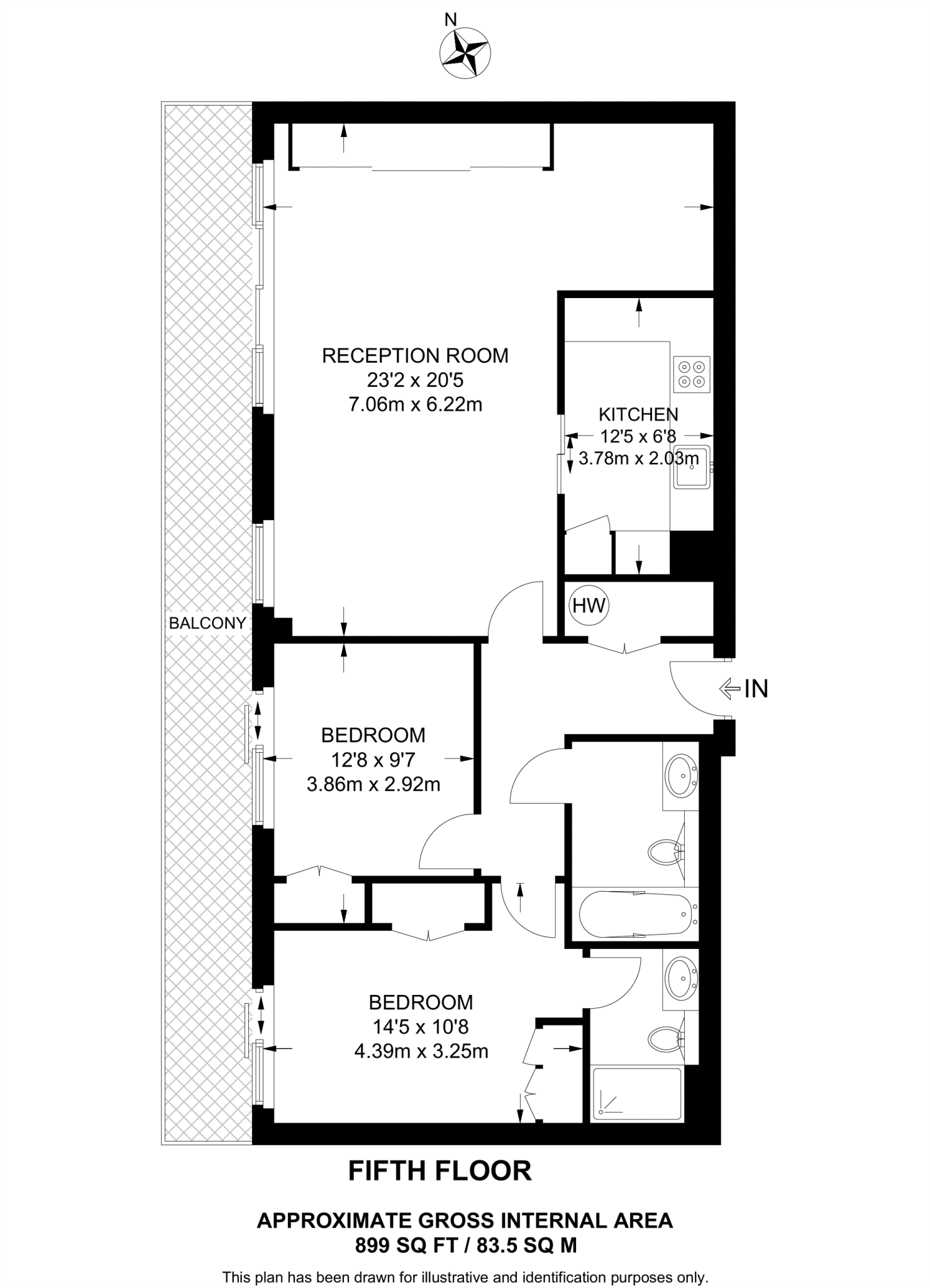
Large contemporary 2-bedroom flat, approximately 899 sq ft
Set on the fifth floor of a modern riverside development, this spacious 2-bedroom flat offers generous living space and a private balcony for outdoor seating. The open-plan reception and sleek fitted kitchen create a bright, sociable core, while large windows flood the rooms with natural light.
The main bedroom benefits from an ensuite shower room and there is a further family bathroom, making the layout practical for couples or a small family. Residents also have access to on-site amenities including a gym and a swimming pool, enhancing everyday convenience and lifestyle appeal.
Built between 2007–2011 with double glazing and insulated system-built walls, the apartment is contemporary and well-proportioned at about 899 sq ft. Heating is electric (air source heat pump and warm air), and the property sits in a quiet, inner-city cosmopolitan area with excellent transport links and nearby green spaces.
This is a leasehold property — prospective buyers should review lease length, ground rent and service charge details. Overall, the flat suits buyers seeking a modern, low-risk riverside home with communal leisure facilities close to Fulham Broadway and Imperial Wharf transport links.
2 bedroom flat for sale in Chelsea Creek, Chelsea Creek, London, SW6 — £1,650,000 • 2 bed • 2 bath • 915 ft²
2 bedroom flat for sale in Imperial Wharf, Imperial Wharf, London, SW6 — £750,000 • 2 bed • 2 bath • 893 ft²
2 bedroom flat for sale in Kings Road Park, Kings Road, London, SW6 — £1,500,000 • 2 bed • 2 bath • 903 ft²
2 bedroom flat for sale in Dockside House, Chelsea Creek, London, SW6 — £900,000 • 2 bed • 1 bath • 736 ft²
2 bedroom apartment for sale in Fairwater House, Parsons Green, SW6 — £1,200,000 • 2 bed • 2 bath • 796 ft²
2 bedroom apartment for sale in Lockgate Road, London, SW6 — £980,000 • 2 bed • 1 bath • 835 ft²


















































































































































































































































































































































































