Period charm with generous gardens and modernised interiors.
Grade II listed timber-framed period house with extensive recent refurbishment
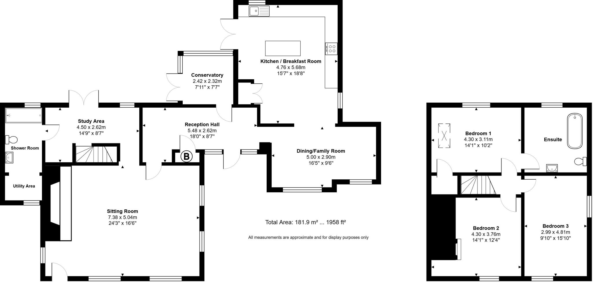
This Grade II listed, timber-framed house sits in the South Downs National Park and combines genuine period character with a comprehensive recent refurbishment. The substantial living space (approx. 1,958 sq ft) has original features such as exposed beams and an inglenook fireplace alongside a bright, updated country-style kitchen and modern fittings.
Set on a large plot with off-street parking, lawned front and rear gardens, patio areas and an outbuilding currently used as storage/stabling, the property offers peaceful countryside living and attractive rural views. Broadband, mobile signal and local services are strong, and nearby schools include a Good-rated primary and an Outstanding secondary.
Important practical points: the house is listed, which will restrict alterations and may complicate future works or extensions. Some bedrooms are characterfully small with lower ceilings; prospective buyers should view internally to assess room proportions and circulation. Council tax details are not provided.
Overall this is a rare, characterful rural home that will suit buyers seeking a comfortable family retreat or downsized period residence who are comfortable with listed-building ownership responsibilities.
3 bedroom detached house for sale in Rogate, Petersfield, West Sussex, GU31 — £1,650,000 • 3 bed • 3 bath • 3786 ft²
3 bedroom detached house for sale in Furzen Lane, Rudgwick, Horsham, West Sussex, RH12 — £1,295,000 • 3 bed • 3 bath • 1828 ft²
3 bedroom house for sale in A beautiful period three bedroom home in a hamlet setting near the historic village of Amberley, BN18 — £925,000 • 3 bed • 2 bath • 2382 ft²
4 bedroom country house for sale in Forestside Road, Rowlands Castle, PO9 — £1,395,000 • 4 bed • 2 bath • 2948 ft²
4 bedroom semi-detached house for sale in London Road, Ashington, RH20 — £675,000 • 4 bed • 1 bath • 1034 ft²
3 bedroom terraced house for sale in Hambledon, Waterlooville, Hampshire, PO7 — £725,000 • 3 bed • 2 bath • 1162 ft²






































































































