Rare oversized plot with planning permission close to Pontypridd town.
Huge flat west-facing plot with panoramic valley views
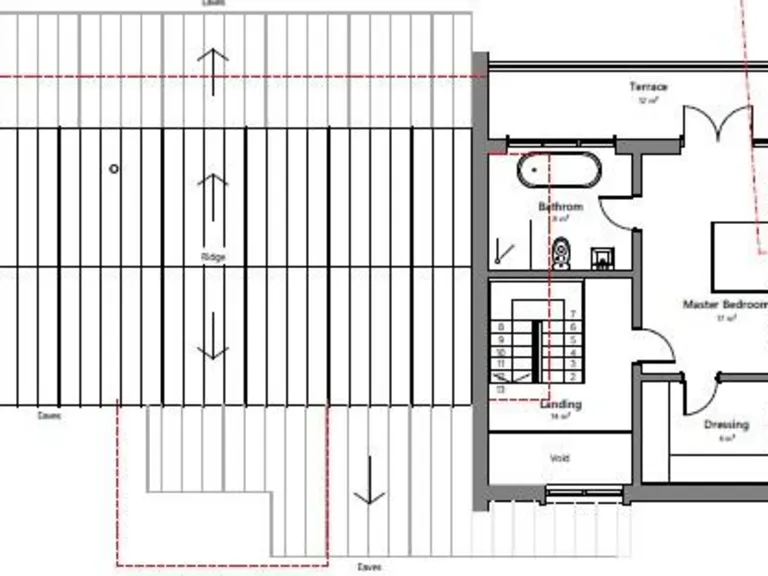
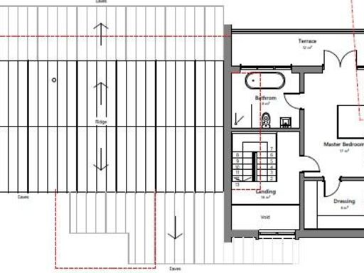
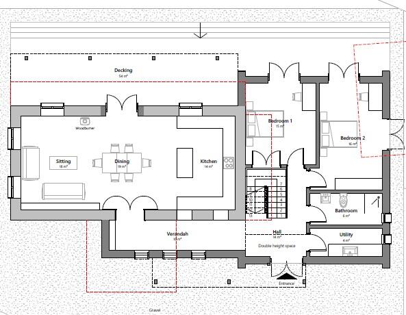
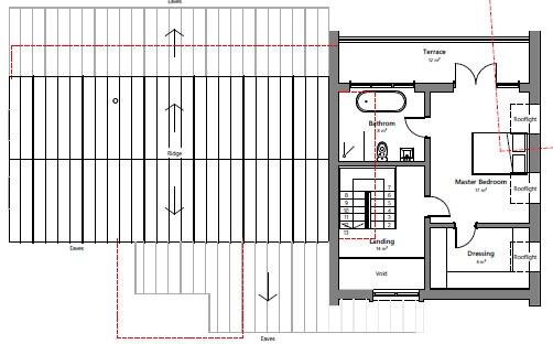
Set on an unusually large, flat west-facing plot with private woodland, this detached bungalow offers immediate scope and long-term potential. Detailed planning permission is in place to replace the current one-bedroom dwelling with a contemporary three-bedroom home designed to maximise the valley views and daylight. The site also includes a double garage, detached outbuilding, a refurbished shipping-container unit and a 14ft yurt — useful interim spaces while redevelopment proceeds.
Practical infrastructure is strong: three-phase electricity, mains gas and nearby fibre broadband make modern living and home working straightforward. Off-street parking for multiple vehicles and easy pedestrian access to Pontypridd town centre (about ten minutes) combine rural seclusion with town convenience. The setting enjoys panoramic valley views, access to local commons and the Taff Trail for outdoor recreation.
Buyers should note clear redevelopment responsibilities: the property currently uses a private cesspit and soak-away, and future redevelopment will require connection to Welsh Water assets under the access lane. An area of previously treated Japanese knotweed exists at the rear boundary (treatment records available). The house has an EPC rating of F and will require update works during conversion or refurbishment.
This offering suits those seeking a sizeable, flexible site — a growing family wanting a bespoke long-term home, or an investor/developer with appetite for permitted conversion and potential for additional housing (subject to consents). The plot’s scale, planning permission and upgraded utilities represent material value drivers; budget for sewage connection, EPC improvement and general refurbishment as part of any programme of works.
Land for sale in Land at High Street, Ynysybwl, Rhondda Cynon Taff, CF37 — £85,000 • 1 bed • 1 bath
Land for sale in Brynteg Lane, Llantrisant, CF72 8LS, CF72 — £320,000 • 4 bed • 3 bath • 2900 ft²
Land for sale in Llancayo Street, Bargoed, CF81 — £120,000 • 1 bed • 1 bath • 2300 ft²
Plot for sale in Plot Adjacent to the Red Lion, Pendoylan, The Vale of Glamorgan CF71 7UJ, CF71 — £285,000 • 4 bed • 2 bath • 2000 ft²
Land for sale in Millbrook Road, Pontllanfraith, Blackwood, NP12 — £350,000 • 1 bed • 1 bath
Plot for sale in Building plot- Land-Site adjacent to Priddfaen Goch, Dan-y Coedcae Road, Graig, Pontypridd, CF37 — £125,000 • 1 bed • 1 bath














































































