Large family home with sunny garden and garage near excellent schools and station.
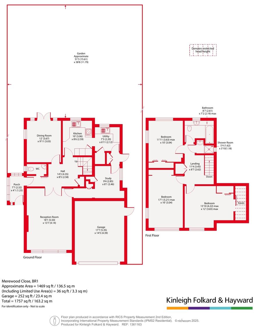
- Almost 1,800 sq ft of living space across two floors
- Sunny south-west facing private garden
- Separate study that can serve as bedroom four
- Large garage with conversion potential (subject to checks)
- Newly renovated internally; new upstairs carpets and kitchen worktops
- Warm-air mains gas heating; energy upgrades may be needed
- Cavity walls assumed uninsulated; double glazing install date unknown
- Chain free, near Chislehurst station and top local schools
Set on a quiet cul-de-sac within the prestigious Bickley Park estate, this spacious four-bedroom detached house offers almost 1,800 sq ft of flexible family space. The ground floor has two reception rooms, a separate study (or bedroom four), downstairs WC, utility area and a kitchen with new worktops. Upstairs are four double bedrooms and a separate shower in addition to the family bathroom. New carpets upstairs and recent redecoration mean you can move in quickly.
The sunny south-west facing garden and large garage are strong practical assets. The garage provides secure parking and storage today and could be converted into additional living space in future, subject to usual checks and consents. The house has been freshly refurbished in many areas yet also offers scope for further modernisation if sought.
Practical details to note: the property uses warm-air central heating on mains gas, and the cavity walls are assumed to have no added insulation; double glazing is present but install date is unknown. These factors may mean further energy-efficiency work is desirable. The house was built in the late-1960s/early-1970s and, while well maintained, still reflects mid-20th-century styling in parts and may need updating to meet individual tastes.
Location is a key draw: close to Chislehurst station, local shops on Vale Road and a wide choice of well-regarded schools nearby. Chain free sale and low local crime make this suitable for families, downsizers or commuters seeking a substantial home in a very affluent area.
4 bedroom detached house for sale in Cedar Copse, Bickley, BR1 — £1,250,000 • 4 bed • 1 bath • 2045 ft²
4 bedroom detached house for sale in Page Heath Lane, Bickley, Bromley, BR1 — £1,150,000 • 4 bed • 2 bath • 2500 ft²
5 bedroom detached house for sale in Southborough Road, Bromley, Kent, BR1 — £1,350,000 • 5 bed • 4 bath • 2339 ft²
4 bedroom detached house for sale in Park Farm Road, Bromley, Kent, BR1 — £1,200,000 • 4 bed • 2 bath • 2015 ft²
4 bedroom detached house for sale in Hartley Close, Bromley, BR1 — £975,000 • 4 bed • 2 bath • 1496 ft²
6 bedroom detached house for sale in St. Georges Road, Bickley, Kent, BR1 — £2,600,000 • 6 bed • 4 bath • 4935 ft²






































































