**Standout Features:**
- Semi-detached three-bedroom family home
- Spacious interior with two versatile reception rooms
- Large garden – perfect for outdoor activities
- Ideally located near Strood and Rochester town centres
- Quick access to M2/A2 links and Strood mainline station
- Affordable council tax and chain-free sale
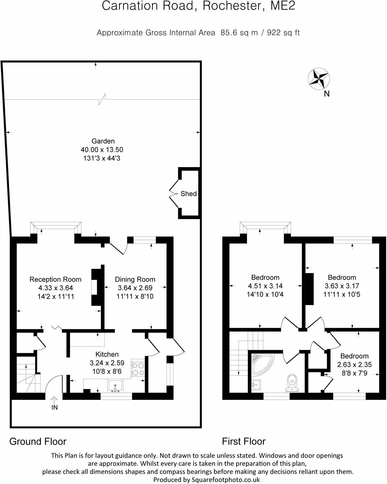
Upon entering this charming semi-detached family home in Strood, potential buyers will appreciate the spacious hallway and the two welcoming reception rooms, perfect for both relaxation and entertainment. The kitchen, at the rear, presents great renovation potential, inviting you to create your ideal culinary space. Upstairs, discover two generous double bedrooms flooded with natural light, alongside a cozy single room ideal for children or an office. This home’s standout feature is the expansive garden, a rare find in the area that promises endless possibilities for families or gardening enthusiasts.
Located in a community with strong transport links, this property offers quick access to central London via Strood mainline station and the M2/A2, making it perfect for commuters. While the area has its challenges, including above-average crime rates and inspection notes that mention a need for building insulation, it remains an excellent choice for first-time buyers and families, thanks to its proximity to local schools, parks, and amenities.
Available for £300,000 - £325,000, this chain-free home is a unique opportunity to invest in a property that blends comfort, potential, and convenience. Don’t miss out on making this house your family’s canvas for the years to come!
3 bedroom semi-detached house for sale in Carnation Road, Strood, ME2 — £325,000 • 3 bed • 1 bath • 967 ft²
3 bedroom semi-detached house for sale in Carnation Road, Rochester, ME2 — £280,000 • 3 bed • 1 bath • 904 ft²
3 bedroom end of terrace house for sale in Columbine Road, Rochester, Kent, ME2 — £300,000 • 3 bed • 1 bath • 966 ft²
3 bedroom semi-detached house for sale in Cuxton Road, Rochester, Kent, ME2 — £300,000 • 3 bed • 2 bath • 1110 ft²
3 bedroom semi-detached house for sale in Allington Drive, Rochester, Kent, ME2 — £380,000 • 3 bed • 1 bath • 989 ft²
3 bedroom semi-detached house for sale in Bootham Close, Strood, Rochester, Kent, ME2 — £425,000 • 3 bed • 2 bath • 1249 ft²






































































































