Recently renovated two-bedroom with period charm near transport and shops.
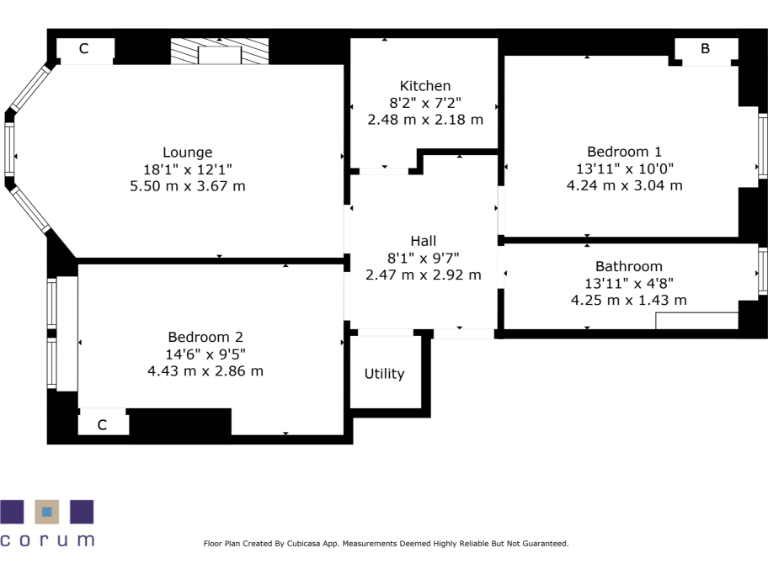
Top-floor bright flat with large bay-windowed lounge
A bright top-floor tenement flat in Shawlands, recently renovated and ready to move into. The bay-windowed lounge and high ceilings retain period character while the fitted kitchen, contemporary bathroom and Hive-controlled central heating deliver modern comfort. Converted to a two-bedroom in 2018, the property benefits from a full rewire, new boiler, new kitchen and new bathroom completed at that time.
Practical features include double glazing, an audio door entry system, a fitted hallway cupboard housing the washing machine and communal back garden access. Crossmyloof station is about 400 yards away and local shops, cafés and parks are within easy walking distance — excellent for daily commuting and leisure.
Notable points to consider: the flat occupies the top floor with access via communal stairs and there is no private garden or dedicated off-street parking. The building is factored, so there are shared service arrangements and associated fees. The surrounding area shows pockets of high deprivation, which may affect local services and resale perceptions.
Overall this is a well-presented, average-sized two-bedroom flat offering a blend of period charm and recent upgrades — particularly suited to buyers seeking a move-in ready home close to transport and local amenities.
2 bedroom flat for sale in 1/1, 71 Waverley Street, Shawlands, G41 2DY, G41 — £180,000 • 2 bed • 1 bath • 742 ft²
2 bedroom flat for sale in 18 Durward Court, Flat 3/1, Shawlands, Glasgow, G41 3RZ, G41 — £179,000 • 2 bed • 1 bath • 732 ft²
2 bedroom flat for sale in 0/2, 2 Grantley Gardens, Shawlands, G41 3QA, G41 — £235,000 • 2 bed • 1 bath • 914 ft²
2 bedroom flat for sale in 1/1, 21 Cartha Street, Shawlands, G41 3HH, G41 — £185,000 • 2 bed • 1 bath • 807 ft²
2 bedroom flat for sale in Waverley Gardens, Glasgow, G41 — £210,000 • 2 bed • 2 bath • 625 ft²
2 bedroom flat for sale in 3/1, 25 Stanmore Road, Mount Florida, G42 9AH, G42 — £249,000 • 2 bed • 1 bath • 990 ft²










































































