Turn-key starter house with woodland views and off-street parking.
Extended ground floor with open-plan kitchen and dining area
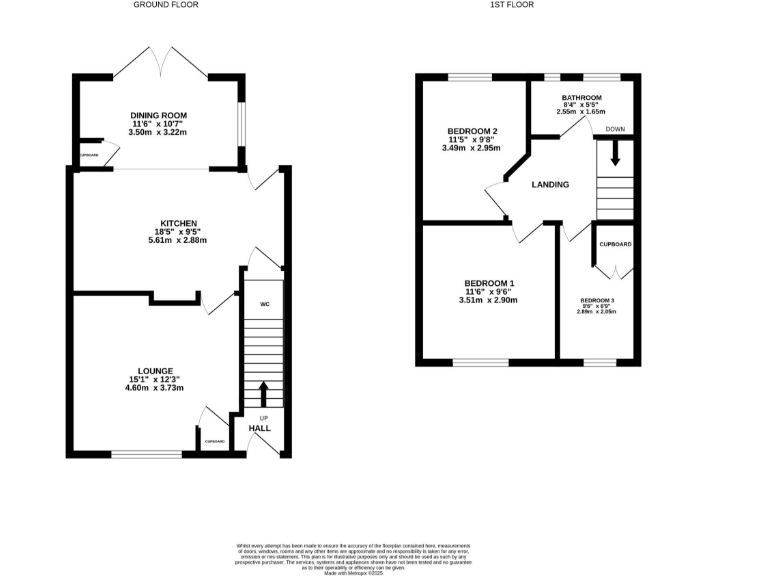
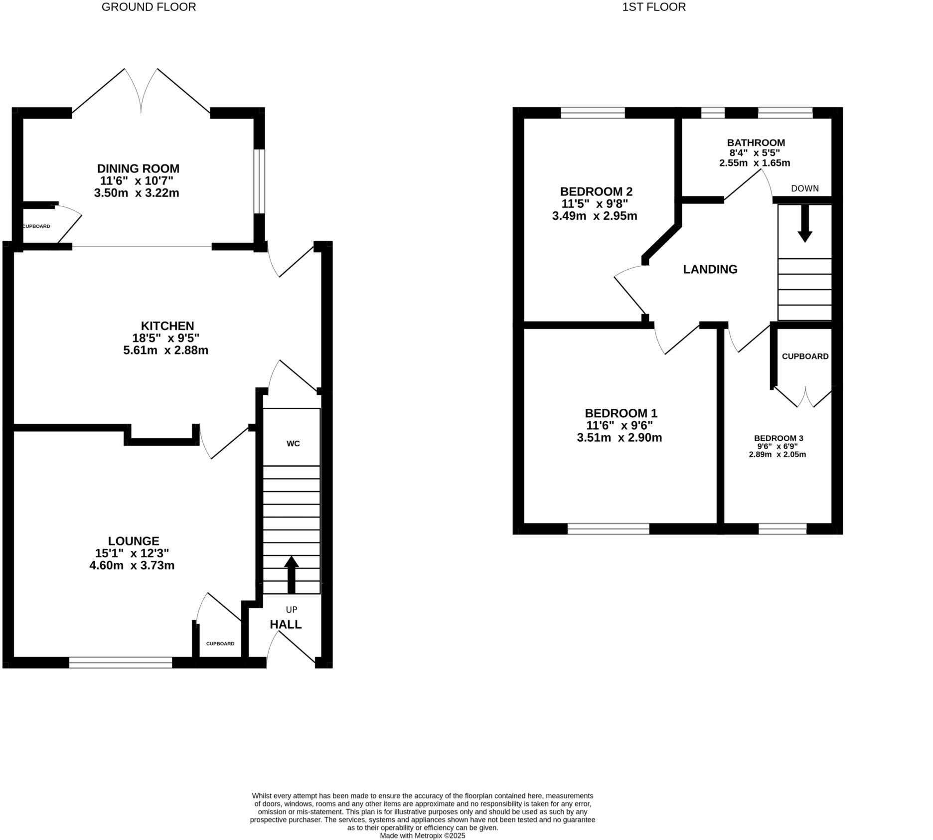
This extended three-bedroom end-terrace, built in 2020, offers a tidy, energy-efficient starter home ideal for first-time buyers. The ground-floor extension creates a bright open-plan kitchen and dining area that opens to a manageable rear garden, while the spacious lounge and understairs WC add practical everyday comfort. Full external insulation, LED lighting and boarded loft storage reduce running costs and increase usable space.
Internally the layout suits a young family or buyers seeking a move-in-ready property: two double bedrooms plus a single/office room, built-in storage and a contemporary bathroom accessed from a generous landing. Front-facing woodland views add a pleasant outlook and the property includes an allocated off-street parking space. Broad connectivity and fast broadband, plus nearby Carpenders Park Overground links, make commuting straightforward.
Notable constraints are the overall small footprint and single bathroom, which may feel tight for larger families. The listing records electric room heaters as the main heating source—buyers should verify the heating arrangement and any service details. With average local crime and affordable council tax, the home presents good value for a compact, low-maintenance urban property close to schools and local amenities.
For buyers prioritising efficiency, location and a ready-to-live-in layout, this house is a practical, well-finished option. Those requiring more space or an extra bathroom should consider whether the plot and layout can meet future extension or renovation plans.
2 bedroom terraced house for sale in Moortown Road, South Oxhey, WD19 — £450,000 • 2 bed • 1 bath • 1087 ft²
2 bedroom end of terrace house for sale in Briar Road, Watford, WD25 — £485,000 • 2 bed • 1 bath • 900 ft²
3 bedroom semi-detached house for sale in Brampton Road, South Oxhey, WD19 — £550,000 • 3 bed • 1 bath • 721 ft²
3 bedroom terraced house for sale in Embleton Road, South Oxhey, WD19 — £485,000 • 3 bed • 1 bath • 947 ft²
3 bedroom semi-detached house for sale in Dumfries Close, South Oxhey, WD19 — £550,000 • 3 bed • 1 bath • 1023 ft²
3 bedroom terraced house for sale in Foxgrove Path, South Oxhey, WD19 — £435,000 • 3 bed • 1 bath • 743 ft²














































































